Owner manual
Table Of Contents

Remote Touch Display AGD-317R
Chapter 2 Hardware Installation 2-4
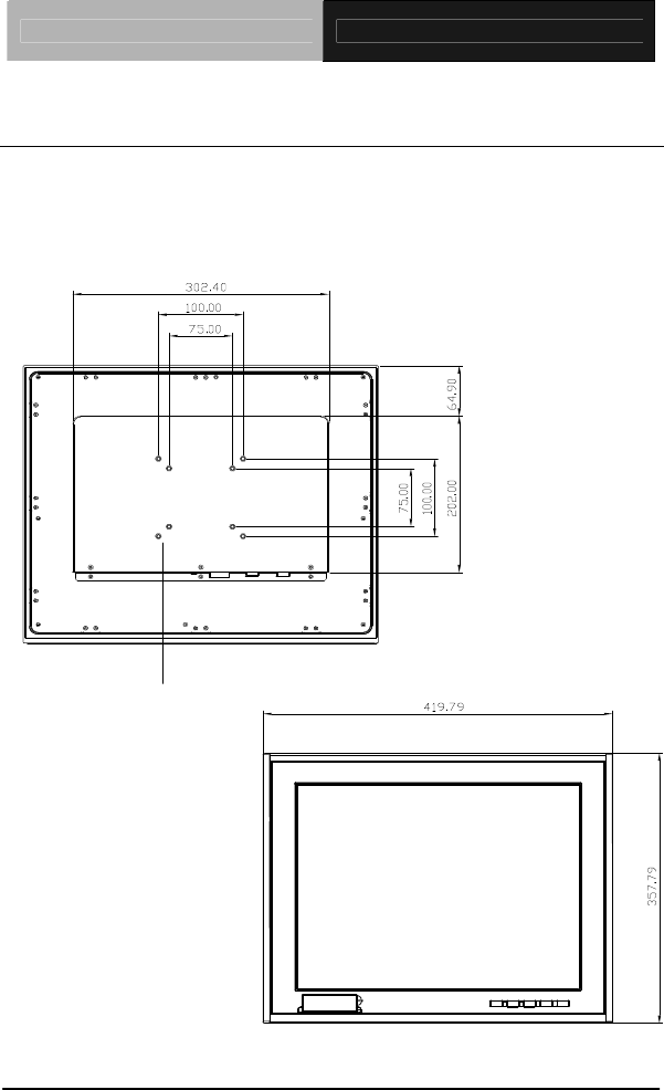
2.3 Panel Mounting
This LCD Display can be placed on a shelf or table, or mounted onto the
wall. To mount it onto the wall, you need the mounting brackets, which you
will find them in the accessory box. Follow the steps described below:
Mount Bracket