Operating Instructions and Installation Instructions

101
AZWG10000
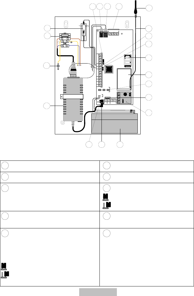
6. Komponenternes betegnelser
BUS
+12 V
GND
LOCK
OPE N
RED
BLK
YEL
GRN
LD1 LD3 LD2
1
L. BA T
GS M
POWER
J14
1234 C
PLAY R EC
4
8
9
10
11
12
13
14
15
16
1718
19
20
3
765
NL
2
FUSE : T 0.5A 250V
100-200V~50/60Hz
MAX:0.4A
J15
J13
COMINPUT TMP
N.C N. O
UØ1 UØ2 UØ3 U Ø4 AUX
SETLINE
PHONE
1
Sabotagekontakt (NC)
11
GSM-modul
2
Sikring (T 250 V/0,5 A)
12
Indstik til SIM-kortet
3
Jordbolt
13
J13: Jumper til sabotage
= ingen sabotagemelding
= sabotagemelding (forindstilling)
4
Netdel (230V/14,5 V DC; 0,8 A)
14
Tilslutningsklemmer (se afsnit 9.2
Ledningsføring)
5
J14: Jumper til sikring af batteriet
mod dybafladning. Hvis strømforsyningen
via netdelen svigter, frakobles udstyrets
nødstrømsbatteri automatisk fra en
undergrænse på 10,5 V.
= Ingen sikring mod dybafladning
= sikring mod dybafladning
(forindstilling)
15
GSM-antennekabel










