User Guide
Manuals
Brands
ACR Electronics Manuals
Other
NAUTICAST INLAND
81
82
83
84
85
86
87
88
89
90
Table Of Contents
Y1-03-0212E Main Manual.pdf
Y1-03-0212E Appendix and Drawings.pdf
GPS Antenna mounting.PDF
Sheet1
Drawing View1
ACR Electronics
5757 Ravenswood Road
F
or
t Lauderdale,
FL 33313
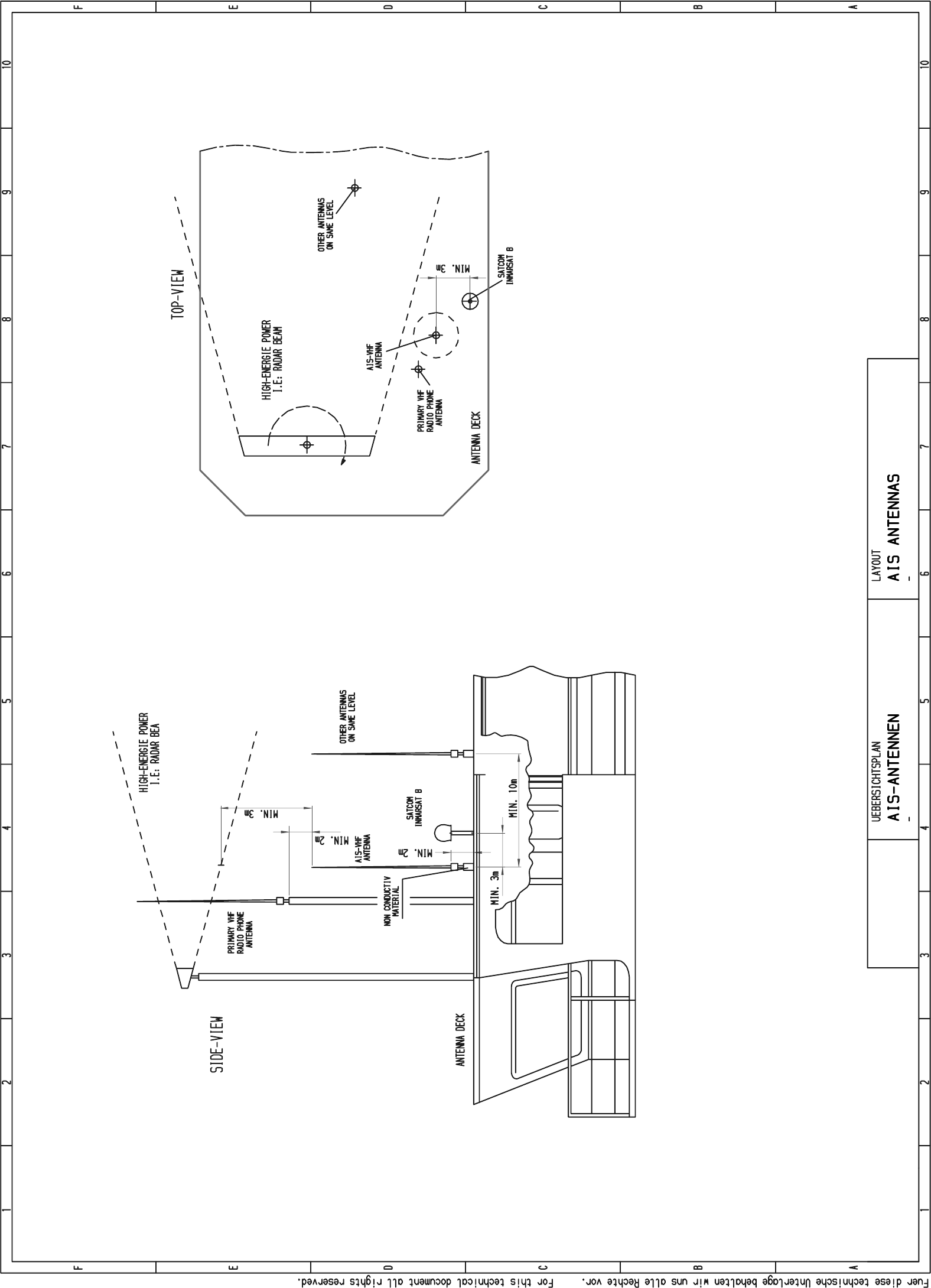
Source, Draw.-No. 46-EX-D-X00001-C, coyright Raytheon Marine GmbH, Kiel, Germany
1
...
...
80
81
82
83
84
...
...
94