Operation Manual
Manuals
Brands
Acson Manuals
Air Conditioning
A5CM 20 E-ER
91
92
93
94
95
96
97
98
99
100
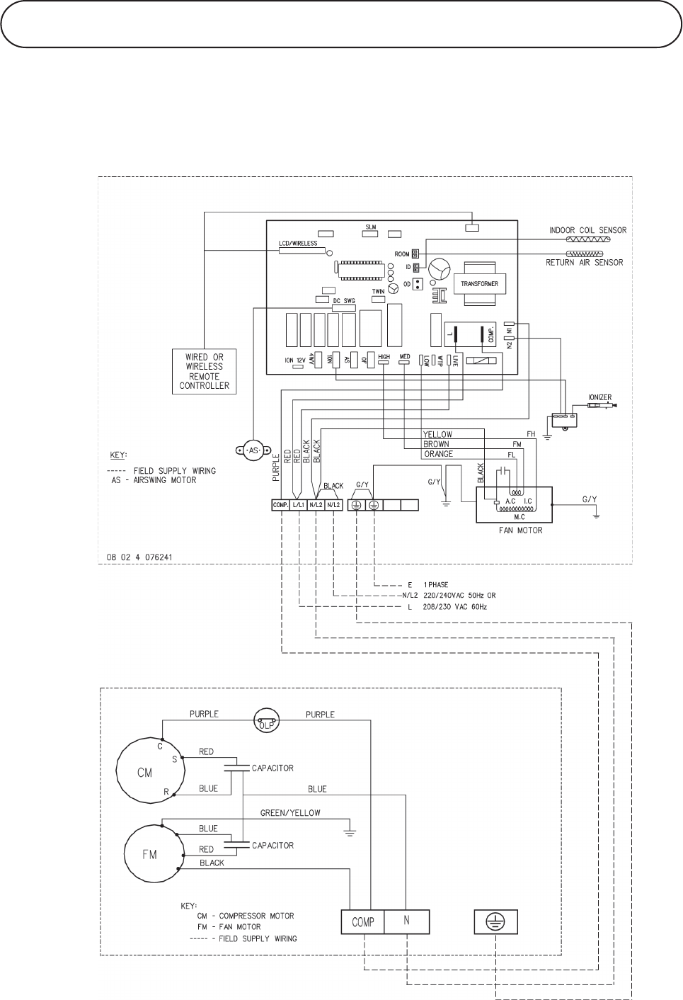
9. WIRING DIAGRAMS
97
COOLING ONL
Y
INDOOR UNIT
MODEL: ACM
/ A5CM
15E
OUTDOOR UNIT
MODEL: ALC
/ A5LC
15C
1
...
...
97
98
99
100
101
...
...
125