Operation Manual
Manuals
Brands
Acson Manuals
Air Conditioning
ACM 28 E-ER
101
102
103
104
105
106
107
108
109
110
103
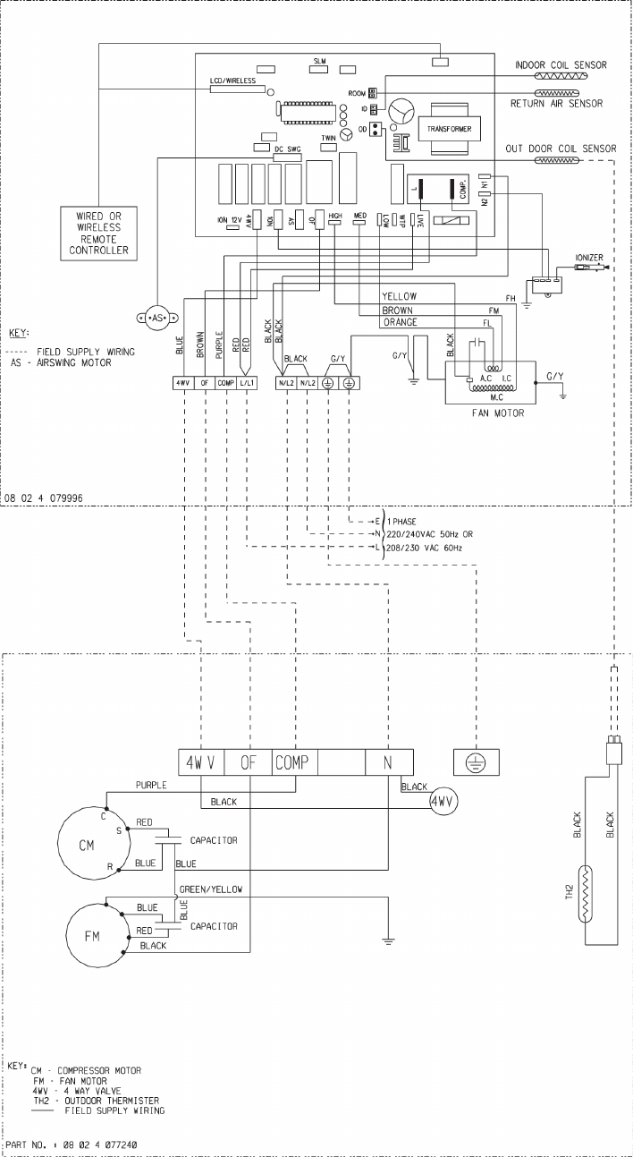
INDOOR UNIT
MODEL: ACM
/ A5CM
20/25ER
OUTDOOR
MODEL:
ALC 18CR
ALC /
A5LC 20/25CR
1
...
...
103
104
105
106
107
...
...
125