Installation Guide
Manuals
Brands
Acudor Manuals
Electrical
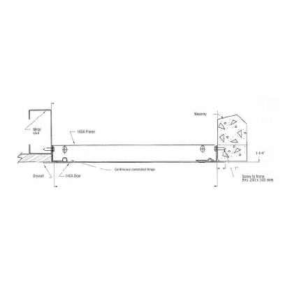
24-in W x 16-in H Load Center Access Panel
1
1
Summary of content (1 pages)
PAGE 1