Installation guide
Table Of Contents
- About This Guide
- Hardware Overview
- Preparing for Installation
- Rack-Mounting the System
- Installing Modules
- Cabling the System
- Powering On and Powering Off
- Configuring Network Access
- System Specifications and Compliance
- Martek Power Supply
- Wiring Diagrams
- Glossary
- Index

ADC Telecommunications, Inc.
146 A
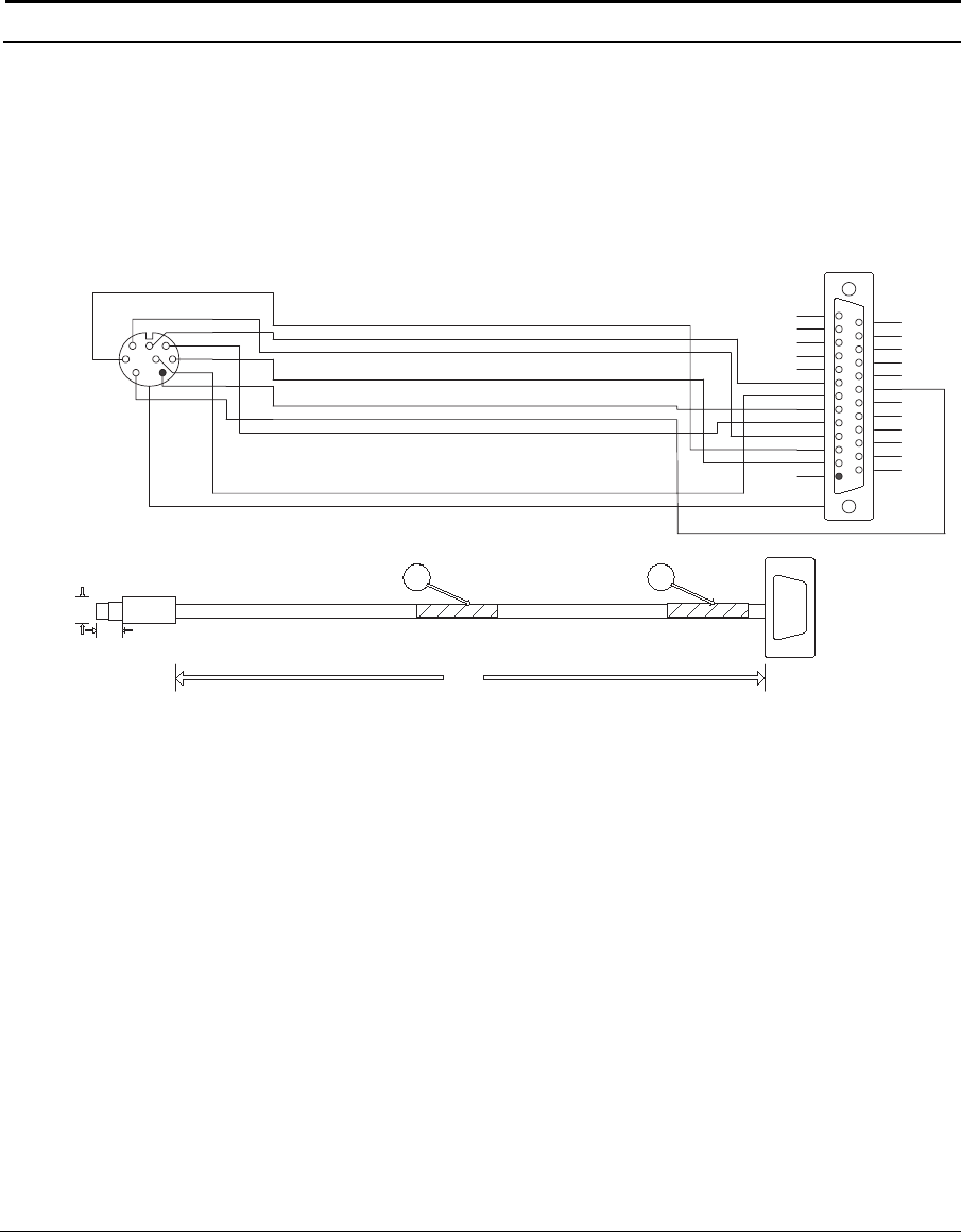
PPENDIX D: WIRING DIAGRAMS
COM Modem Cable Assembly
10'
A
Note 1
8 Pin Mini-Din Male
GND
Shield
Rx
Tx
CTS
RTS
DTR
DSR
DB-25 Male
CD
1
3
4
5
2
6
7
8
1
5
4
3
2
9
8
7
6
10
17
11
16
12
15
13
14
21
20
19
18
24
23
22
25
Notes:
1) Shield connection required, cable can use foil shield and drain
wire.
2) Any over molding larger than .5" on the DIN8 connector must be
.5" back away from the end of the DIN connector. The mating
module connector is recessed within a .5" faceplate hole.
.5"
.5"
See Note 2
B










