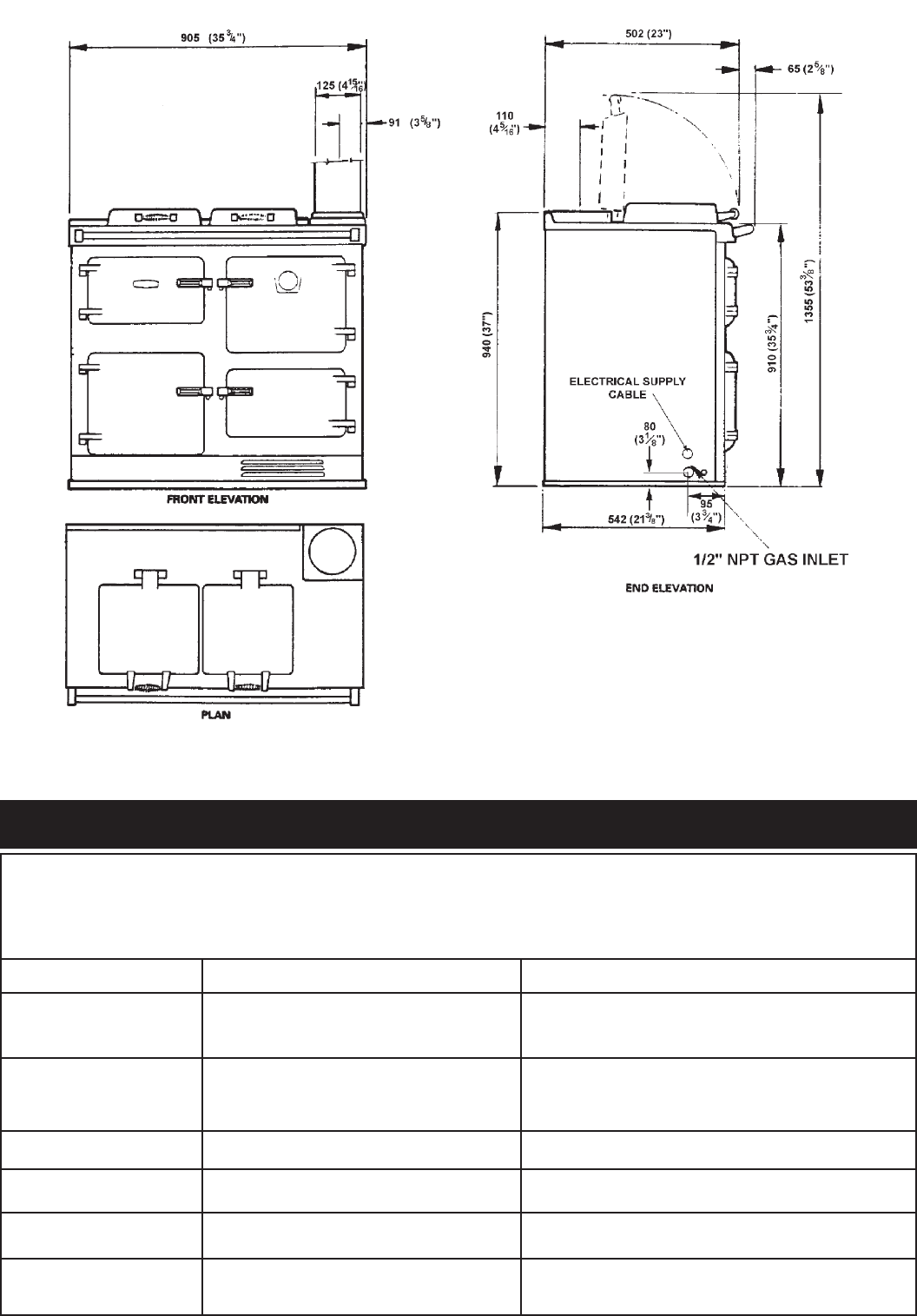
Technical data

DESN 512448
PLEASE NOTE: IT IS ADVISABLE TO
CHECK THE ACTUAL SIZE/WIDTH
OF YOUR APPLIANCE BEFORE
FINALLY FIXING ANY KITCHEN
UNITS, SINCE ENAMELLED CAST
IRON CAN VARY IN SIZE
DIMENSIONS IN MM
5
Gas Inlet 1/2” NPT Unpacked Appliance Weight - 326 Kg (719 lbs)
Electrical Supply 115 V 60 Hz
Natural Gas Propane
Appliance Inlet 10” w.g. 15” w.g.
Pressure (MAX.)
Burner Pressure
- 0.044 w.g. (± 0.012” w.g.) - 0.044 w.g. (± 0.012” w.g.)
(NEGATIVE) (non-adjustable) (non-adjustable)
Max Flue Temp. 445ÞF 450ÞF
CO 0 - 50 ppm 0 - 50 ppm
CO
2
% 8.2% - 9.9% 9.4% - 10.8%
Heat Input 50,000 Btu/hr 50,000 Btu/hr
TECHNICAL DATA










