Technical data

The appliance is floor mounted and must be installed on a solid floor or base of non-combustible material which is capable
of supporting the total weight.
The location chosen for the appliance must permit the installation and the provision of a satisfactory flue and an adequate
air supply. The location must also provide adequate space for servicing and for air circulation around the appliance. See
“Installation of the Appliance”.
The space in which the appliance is to be fitted must have the following minimum dimensions:
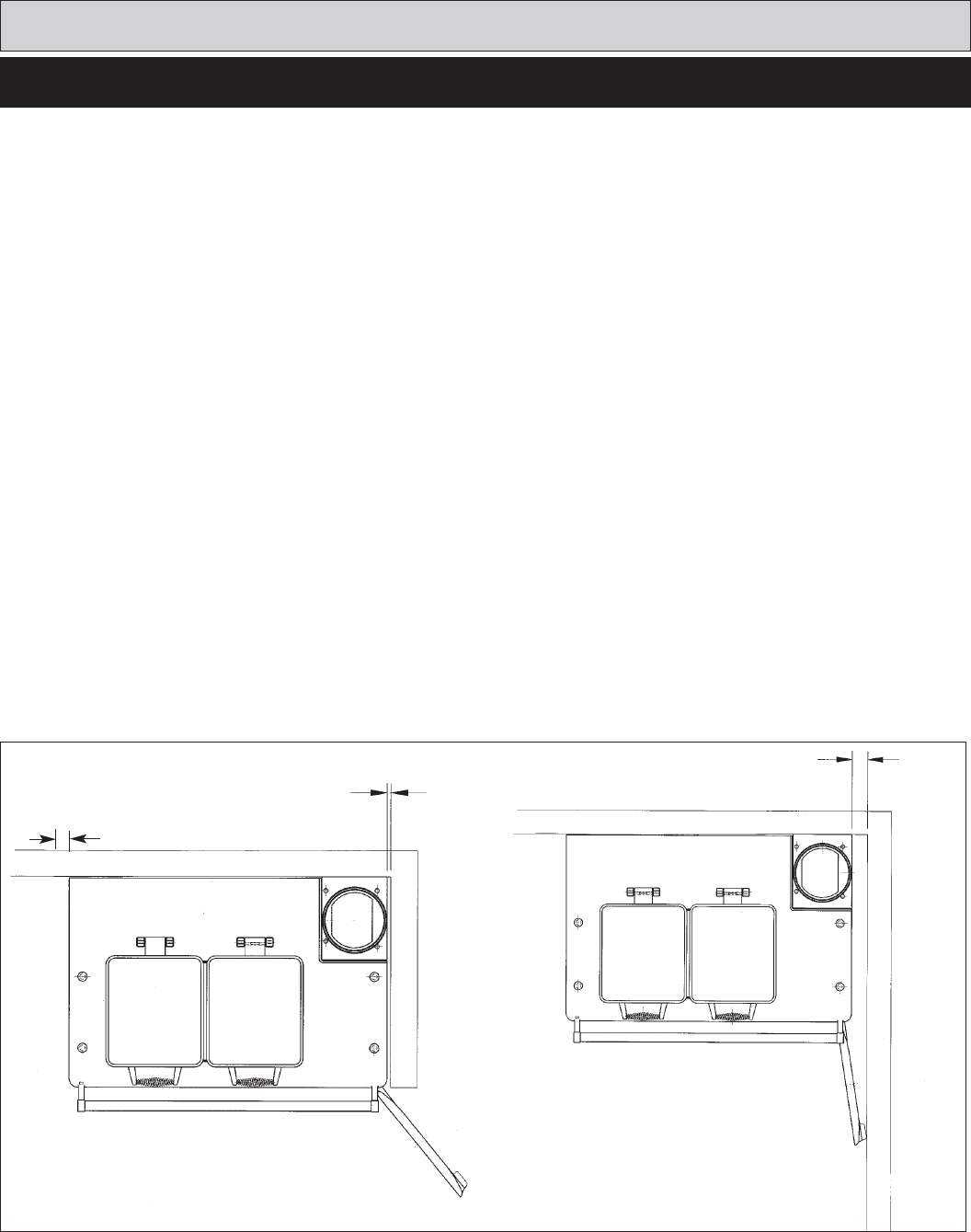
Between wall and LH side of appliance - 10 mm (3/8”)
Between wall and RH side of appliance - 10 mm (3/8”)
SHOULD THE WALL PROJECT BEYOND THE FRONT OF THE APPLIANCE, THEN THE GAP AT THE R.H. SIDE
MUST BE INCREASED TO 50 mm (2”) TO ALLOW REMOVAL OF OVEN SHELVES. (SEE FIG. 1).
Height above the raised hotplate - 762 mm (30”)
Max. depth of cabinets above hotplate - 330 mm (13”)
In addition, adequate clearance must be available at the front of the appliance to enable it to be operated and serviced.
Flue pipes and fittings must not be closer than 57 mm (2
1
/4”) to combustible materials. Any openings in the wall behind
the appliance and in the floor under the appliance shall be sealed.
Spaces around flue pipes passing through walls or floors should be sealed against the passage of smoke and flame.
Where the cooker is to stand in a recess or against a wall which is to be tiled, in no circumstances should the tiles
overlap the cooker top plate.
LOCATION
50 mm
(2”)
10mm (3/8”)
FIG. 1A
WALL PROJECTING BEYOND THE
FRONT OF THE APPLIANCE
Site requirements
7










