Technical data

Site requirements
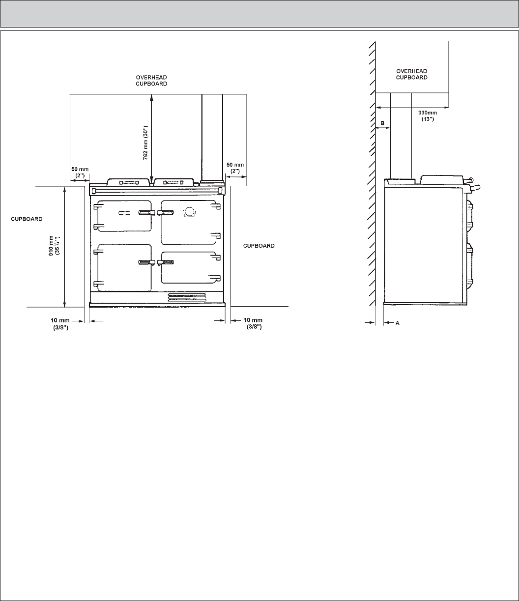
8
FIG. 1B DESN 512558
INSTALLATION CLEARANCES
REAR DIM ‘A’ COMBUSTIBLE WALL 1” (25mm)
NON-COMBUSTIBLE WALL 0” (0mm)
DIM ‘B’ FLUE PIPE CLEARANCE TO 2
1
/4” (57 mm)
COMBUSTIBLE WALL
NON-COMBUSTIBLE WALL 1” (25 mm)
SIDES BELOW HOTPLATE
3
/8” (10 mm)
SIDES ABOVE HOTPLATE 2” (50 mm)
WALL CABINET OVERHEAD 30” (762 mm)
WALL CABINET OVERHEAD 13” (330 mm)
MAXIMUM DEPTH
WALL CABINET ALONGSIDE 30” (762 mm)










