Operation Manual

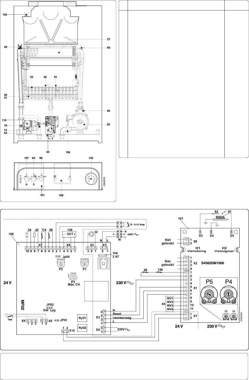
27
Nr. Omschrijving
14 overstortventiel C.V (3 bar)
20 houder gasinspuiters
21 gasinspuiters hoofdbrander (aardgas)
22 hoofdbrander (reep)
27 koperen warmtewisselaar
32 c.v.-pomp (UPS 15/50)
34 temperatuursensor (C.V-aanvoer,
NTC inschroef 10kOhm bij 25°C)
36 automatische ontluchter
42 temperatuursensor (koud tapwater,
NTC inschroef 10kOhm bij 25°C)
44 gasblok (Honywell VK41.5G)
49 maximaalthermostaat (100°C)
50 beschermingsthermostaat (88°C)
63 knop voor ketelregelthermostaat
81 ontstekingselektrode
82 ionisatie elektrode
98 knop voor aan/uit/reset schakelaar
100 ontsteek en beveiligingsprint
(Honywell S4562DM1006)
101 hoofdprint (Honywell MF02)
114 watergebrekschakelaar
126 thermische terugslag beveiliging (80°C)
136 stromingssensor tapwater (Caleffi)
145 manometer C.V.
157 knop voor regelthermostaat warmtapwater
Bestel nr
3250012
3288010
3288081
3288130
3288015
3288010
3288300
3288300
3288200
3288030
3288025
3288170
3288306
3288304
3288302
3288310
3288260
3286404
3288026
3287011
3288035
3288170
Figuur 12.1 Service onderdelen Domina C24E
Figuur 12.1 Hoofdprint en ontstekingsprint Domina C24E
P1=Aanvoertemperatuur C.V.
P2=Warmwatertemperatuur
P3=Max vermogen voor C.V.
P4=Branderdruk tijdens ontsteking
P5=Min Branderdruk (electronisch)
X5 Test aansluiting
Als een doorverdingding tussen de pennen van
connector X5 wordt gemaakt komt het toestel direct in
voor cv-bedrijf en schakelt naar maximaal vermogen.
LET OP!
Verwijder de doorverbinding voor u de electronika kast
sluit!
12.2 Overzicht van het toestel en de serviceonderdelen.