Operating Instructions and Installation Instructions

AE/AER222 MODELL - AUßENGERÄTS-BENUTZUNG BEI NIEDRIGEN TEMPERATUR
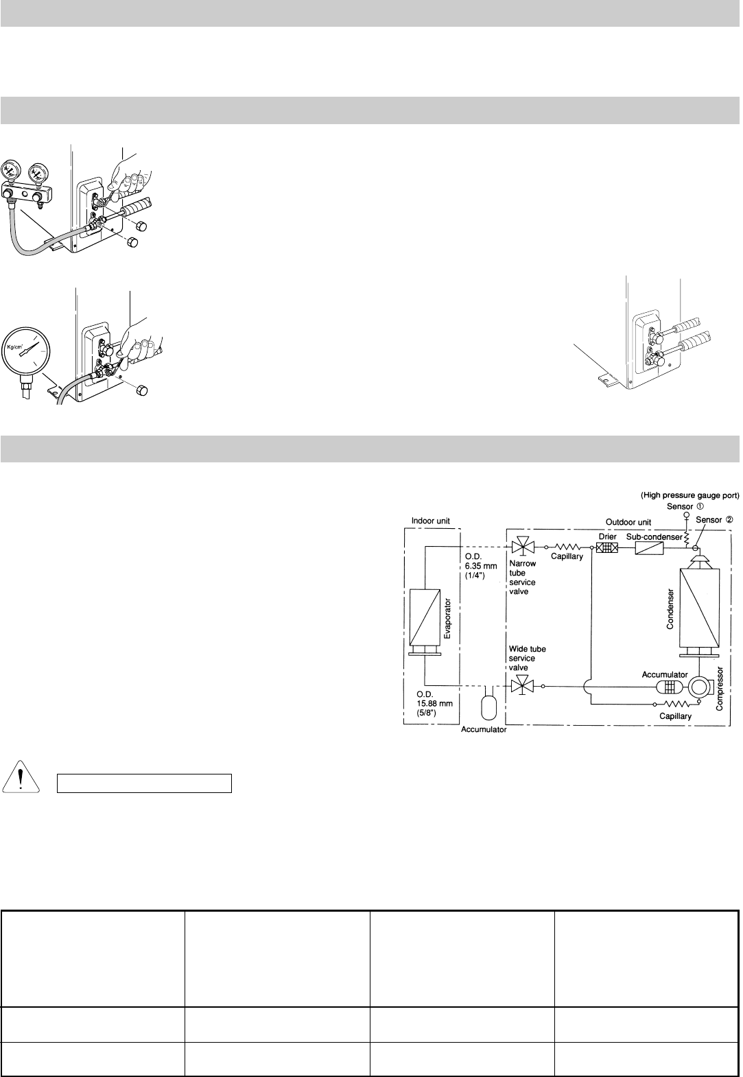
Katalog Nummer Einstellung (Siehe Anm.) SensorpositionHersteller
1) Johnson
1) Controls
P215LR-9110 / P215DP-9100
16 Bar
(Fabrikeinstellung)
Hochdruck-
Meßöffnung
2) Ranco
1) Controls
E31-2826 (sensor
L55-2000)
41°C
(Fabrikeinstellung)
Kondensatorauslaß-
Rückflußleitung
Wenn die Klimaanlage während Phasen von kälterem Wetter benutzt
wird (Außentemperatur niedrigen von 19°C), kann der Evaporator
einfrieren. Es wird empfohlen, das Gerät bei kühlerem Wetter nicht zu
benutzen. Jedoch können Sie am Gerät die unten beschriebenen
Veränderungen durchführen.
1)
Auf Wunsch erhältliche Ventilatormotor-Geschwindigkeitssteuerung
Wenn Sie das Gerät bei kühlem Wetter benutzen wollen, ist es empfehlenswert,
eine der in der Tafel enthaltenen, im Handel erhältlichen Ventilatormotor-
Geschwindigkeitssteuerungen zu gebrauchen. Stellen Sie die Kondensator-
Ventilatormotor-Geschwindigkeitssteuerung an dem Ort ein, and dem Sie
das Gerät installieren wollen und überprüfen Sie, ob die Steuerung den
Ventilator durch direktes Wahrnehmen des Kondensatordruckes
(Spulentemperatur) auf Geschwindigkeiten zwischen “Stop” und Maximum
einstellt, um einen gleichbleibenden Druck (Temperatur) zu erhalten.
2) Installieren Sie den folgenden Akkumulator nach der Einstellung
der Geräte
Kapazität: 1,5 Liter oder mehr
Verbindungsdurchmesser: 15,88 mm (5/8”)
Betriebsdruck: 22 kg/cm
2
oder mehr.
Verbindungsmethode: Siehe Abb.
Im Kompressor kann Flüssigkeitskompression stattfinden, wenn ein Akkumulator nicht wie gezeigt installiert wird.
ANMERKUNG: Eine kleine Korrektur der Einstellung mag notwendig sein, abhängig von Kühlmittel und Rohrlänge. Deshalb sollten die hier
angegebenen Werte nur als Richtlinie dienen.
Überprüfen Sie, ob ausreichend Kühlmittel vorhanden ist (Möglichkeit eines Gaslecks), wenn während des Betriebes bei niedrigen Außentemperaturen
auf der Innenraumspule Frost erkennbar ist. Korrigieren Sie die Situation durch Erhöhung der Kühlmittelmenge.
VORSICHT
15
Das bedeutet: das Kühlmittel in die Außeneinheit ohne Gas-Verlust zurückzugewinnen. Man benutzt es, wenn das Klimagerät in eine neue
Position gestellt werden muß oder der Kühlmittelkreislauf Verbesserung braucht.
Ein manometrisches Aggregat mit
dem Niederdruck-Ventil verbinden
(1/4 Umdrehung). Die Luft vom
Druckmesser abblasen. Das
Hochdruck-Ventil zudrehen.
Das Klimagerät in Betriebsart Kühlung
einschalten.Wenn der vom Druckmesser
angezeigte Druck einen Wert zwischen
1 und 0,5 kg/cm
2
erreicht, drehen Sie
das Niederdruck-Ventil zu und schalten
Sie das Klimagerüt aus.
Das manometrische Aggregat
entfernen. Jetzt ist die PUMP
DOWN-Phase aus, weil das ganze
Kühlmittel in der Außeneinheit
zurückgewonnen worden ist.
PUMP DOWN
PUMP-DOWN-VERFAHREN
1
0,5
0
D-inst374140166.0-ted 31-03-1999 15:36 Pagina 15