User Manual

Allen & Heath 8 WZ
4
16:2 and 12:2 User Guide
Installing the Console
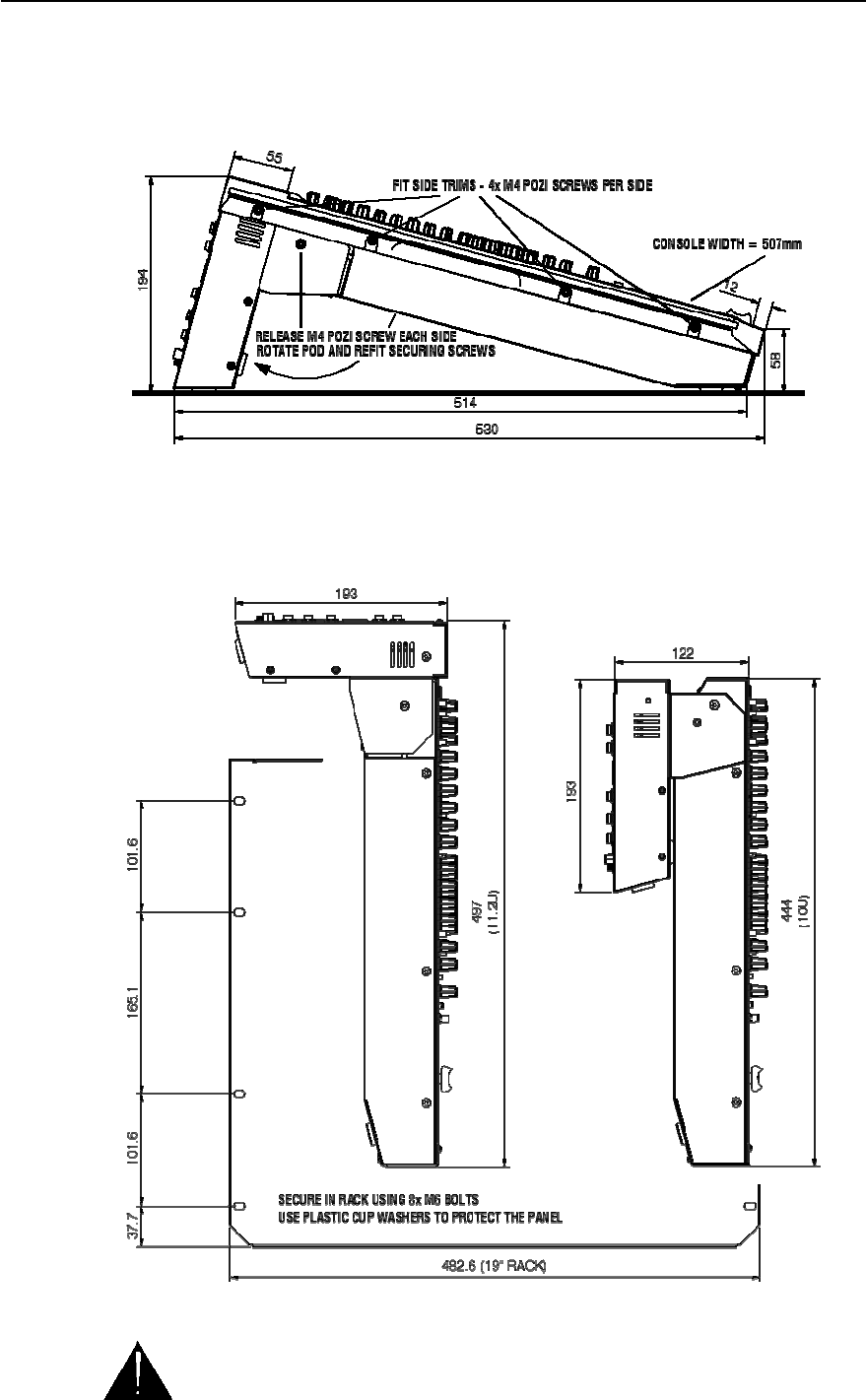
Free Standing
The console is supplied ready for free standing operation with its side trims fitted and connector pod positioned for
rear access. If you are converting from rack to free standing then make sure the pod is correctly rotated and se-
cured, and the side trims fitted as shown:
19” Rack Mount
For rack mounting, remove the two side trims and rotate the pod into the connector position preferred. Allow
enough space for the cables and connectors behind the console.
Do not transport the console with its connector pod securing screws removed. Do not attempt to re-
move the connector pod from the console. Do not obstruct the ventilation slots. Allow adequate space
around the console for air flow. If the side trims are to be removed, do not refit their fixing screws to the
unit. Retain and store these in case the trims need to be refitted in the future.










