Operation Manual

12 WZ16:2DX AND WZ12:2DX USER GUIDE
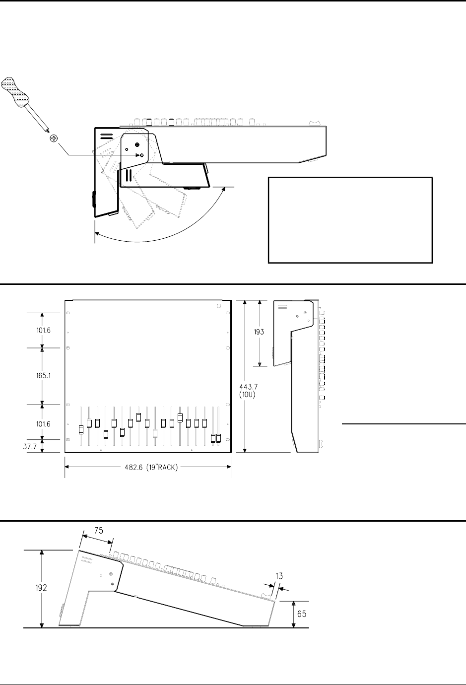
INSTALLATION DES MISCHPULTES
Die MixWizard-Baureihe verfügt über das Quick Change Connector (QCC) Anschluss-System von ALLEN &
HEATH. Die Anschlussgruppe hinten kann gedreht und in zwei verschiedenen Positionen fixiert werden. In
einer Position hat man die Anschlüsse hinten mit einem praktische 15-Grad Winkel der Bedienungsoberfläche.
Wird die Anschlussleiste nach unten gedreht, kann man das Pult mit 10 HE in einem 19”-Rack einbauen. Die
Position kann jederzeit entsprechend ihrer Anwendung verändert werden.
To change the
position remove the
crosshead locking
screw on each side,
swing the connector
pod into position, and
refit the two screws
PRECAUTION :
Do not transport or carry the
console with the locking screws
removed.
Do not attempt to remove the
connector pod from the console.
19”
RACK MONTAGE
Montieren Sie das Pult mit je
4x M6 Schrauben auf jeder
Seite für optimalen Halt. Wir
empfehlen Plastik-
Schutzringe zum Schutz der
Flächen und wegen ihrer
Optik. Man sollte diese
Bauteile bei guten Bauteile-
Läden oder dem Lieferanten
des Racks bekommen.
FLIGHTCASING
Das Pult kann in jeder
Position der Anschluss-platte
eingebaut werden. Geben
sie dem Flightcase-Bauer
die nebenstehenden Daten.
DESKTOP EINSATZ
Das Kontrollfeld hat einen Winkel
von 15 Grad für bessere
Bedienung.