User's Manual

5. Alarms
Page 50 User’s Manual for ION
®
-U
5.4. External Alarm Inputs and Outputs
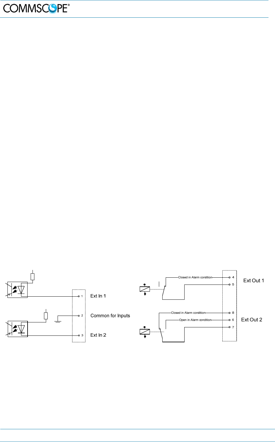
The eight-pin EXT ALARM IN/OUT connector supports two external alarm inputs and
two external alarm outputs. Chapter 4.3.10 External alarm In / Out port includes the
connector’s pin-out information and chapter 4.3.3 Connections identifies the
connector’s location.
The alarm outputs are realized with relays (switching capacity max. 60 VDC, max.
2 A, max 60 W). They can be used to monitor alarms with an external alarm
indicator.
Note: The manufacturer / supplier of this system accepts no liability for
damage caused by equipment connected to external outputs or by
effects from such equipment.
With the external alarm inputs, it is possible to monitor the status of connected
devices, e.g. a UPS, via software. All alarm inputs are normally high (5 V) without
connection. The polarity (high/ low) can be set via the software at the Master Unit (for
details please see the appropriate ION-U software manual).
The device to be monitored must be connected so that the alarm contacts will be
closed in case of an alarm (I max = 5 mA). The alarm inputs are potential-free with
common ground (earth).
Subminiature circular connectors series 712 with eight contacts, which are included
in the alarm kit, can be ordered directly from the Binder Connector Group, the
manufacturer, or indirectly from CommScope.
figure 5-1 Alarm inputs and outputs










