User Manual
Table Of Contents

Antaira Industrial Ethernet Switches
LNX-0501G-SFP Series User Manual V1.2
3
2. Hardware Description
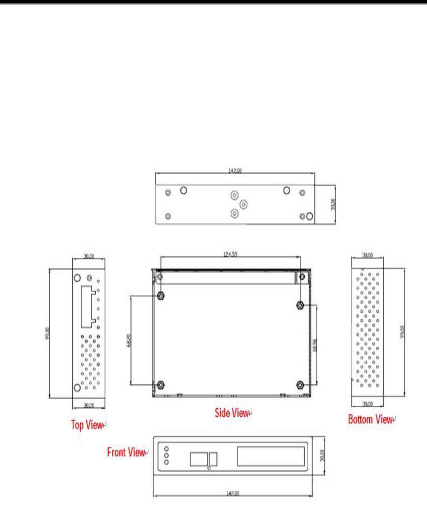
2.1 Physical Dimensions
Figure 2.1, below, shows the physical dimensions of Antaira’s LNX-0501G-SFP series:
5
-port
industrial gigabit unmanaged Ethernet switch with 4*
10/100/1000Tx and 1*100/1000SFP slot.
(W x D x H) is 30mm x 99mm x 142mm
Figure 2.1
LNX-0501G-SFP Series Physical Dimensions










