user manual

1010
1010
10
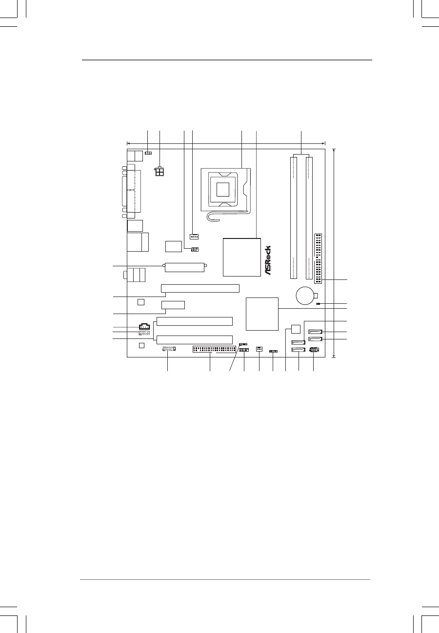
1.4 Motherboard Layout1.4 Motherboard Layout
1.4 Motherboard Layout1.4 Motherboard Layout
1.4 Motherboard Layout
1
PS2_USB_PWR1
ATXPWR1
Wolfdale1333-D667
IDE1
CHA_FAN1
SPEAKER1
1
HD_AUDIO1
Intel
945GC A2
Chipset
CLRCMOS1
PANEL1
HDLED RESET
PLED PWRBTN
1
CMOS
Battery
4Mb
BIOS
1
AUDIO
CODEC
22.1cm (8.7 in)
24.4cm (9.6 in)
ATX12V1
Super
IO
Dual Channel
DDRII667
SATAII
FLOPPY1
1
2
4
5
7
6
8
9
10
12
13
14
11
15
16
1718
19
22
23
24
25
26
27
3
20
21
FSB1333
Dual Core CPU
Wolfdale
RoHS
Intel
ICH7
FSB800
DDRII_1 (64 bit, 240-pin module)
FSB800
DDRII_2 (64 bit, 240-pin module)
SATAII_3
SATAII_1
SATAII_4
SATAII_2
PCI1
PCI2
PCIE1
PCIE2
CD1
LAN
PHY
PCI
EXPRESS
USB 2.0
T: USB2
B: USB3
USB 2.0
T: USB0
B: USB1
Top:
RJ-45
PARALLEL PORT
COM1
PS2
Mouse
PS2
Keyboard
VGA1
Top:
Line In
Center:
Line Out
Bottom:
Mic In
CPU_FAN1
IR1
1
WIFI
1
1
USB4_5
USB6
1
28
1 PS2_USB_PWR1 Jumper 15 Secondary SATAII Connector
2 ATX 12V Connector (ATX12V1) (SATAII_2; Red)
3 DeskExpress Hot Plug Detection Header 16 BIOS SPI Chip
(IR1) 17 Chassis Speaker Header (SPEAKER 1)
4 CPU Fan Connector (CPU_FAN1) 18 Chassis Fan Connector (CHA_FAN1)
5 775-Pin CPU Socket 19 USB 2.0 Header (USB4_5, Blue)
6 North Bridge Controller 20 USB 2.0 Header (USB6, Blue)
7 2 x 240-pin DDR2 DIMM Slots 21 Floppy Connector (FLOPPY1)
(Dual Channel: DDRII_1, DDRII_2; Yellow) 22 WiFi Header (WIFI)
8 IDE1 Connector (IDE1, Blue) 23 PCI Slots (PCI1- 2)
9 Clear CMOS Jumper (CLRCMOS1) 24 Front Panel Audio Header (HD_AUDIO1)
10 South Bridge Controller 25 AInternal Audio Connector: CD1 (Black)
11 Primary SATAII Connector (SATAII_1; Red) 26 PCI Express x1 Slot (PCIE2)
12 Third SATAII Connector (SATAII_3; Orange) 27 PCI Express x16 Slot (PCIE1)
13 Fourth SATAII Connector (SATAII_4; Orange) 28 ATX Power Connector (ATXPWR1)
14 System Panel Header (PANEL1)