Communications System Owner Manual

Table Of Contents
SYNCHRONIZATION OF DIGITAL FACILITIES B-23
_ ______________________________________________________________________________________
_ ______________________________________________________________________________________
_ ______________________________________________________________________________________
Facility rank ordering is generally based on limited technical and operational information. It is
recommended that facility selections be based on local field experience where available.
RULE 4:
Where possible, the routes for all primary and secondary synchronization facilities should be diverse.
EXAMPLE FOR RULE 4
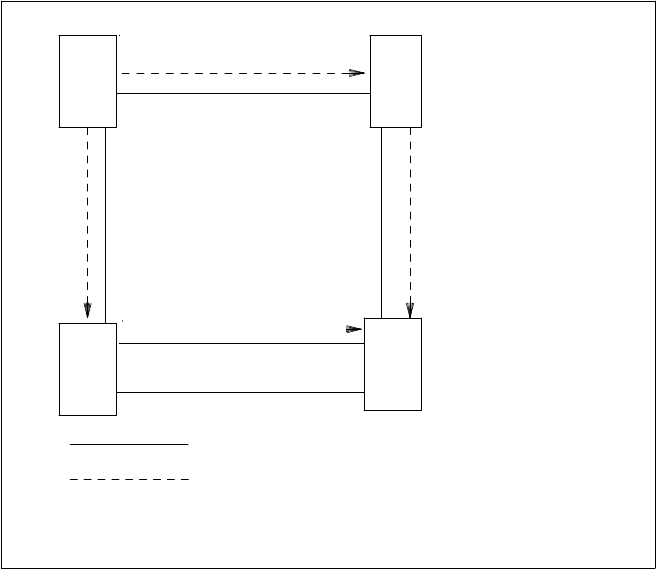
Figure B-15, Optimal Diverse Routing, explains the optimal configuration when rule 4 is used. Figure B-
16, Less Than Optimal Diverse Routing, shows a less than optimal application of rule 4.
SECONDARY (BACKUP) FREQUENCY REFERENCE
. . . . . . . . . . . . . . . . .
A
PRIMARY FREQUENCY REFERENCE
DIGITAL TRANSMISSION FACILITY
. . . . . . . . . . . . . . . . . . . . . . . . . . . . . . . . . . .
D
B
C
Figure B-15. Optimal Diverse Routing
Figure B-16, Less Than Optimal Diverse Routing, shows node C deriving both primary and secondary
timing from node D, via the two separate T1 facilities. If node D should fail, node C would no longer
receive timing that is traceable to node A. Here, node C would lose synchronization and begin to introduce
slips into the network.