Communications System Owner Manual
Table Of Contents
- Table of Contents
- ABOUT THIS DOCUMENT
- 1. INTRODUCTION TO CONNECTIVITY
- 2. COMMUNICATION SYSTEM NETWORKING (em AN OVERVIEW
- 3. TANDEM TIE TRUNK NETWORKS
- 4. MAIN-SATELLITE/TRIBUTARY (MS/T) NETWORKS THROUGH THE UDP OR MULTIPREMISES PACKAGES
- 5. ELECTRONIC TANDEM NETWORK (ETN) THROUGH THE ETN AND PNA PACKAGES
- 6. DISTRIBUTED COMMUNICATIONS SYSTEM (DCS)
- 7. DATA CONNECTIVITY - AN OVERVIEW
- 8. DATA COMMUNICATIONS CAPABILITIES
- 9. DATA COMMUNICATIONS CONFIGURATIONS
- A. RELATED DOCUMENTS
- B. SYNCHRONIZATION OF DIGITAL FACILITIES
- THE NEED FOR SYNCHRONIZATION
- SYNCHRONIZATION HIERARCHY
- CHANGES TO THE SCS SOFTWARE MADE AVAILABLE VIA SOFTWARE PATCHES
- NETWORK SYNCHRONIZATION AND ENGIINEERING
- AVAILABILITY OF SYNCHRONIZATION SOURCES
- CONCLUSIONS ON SYNCHRONIZATION
- USE OF GENERIC 2 AS A SYSTEM CLOCK REFERENCE
- USE OF GENERIC 1 AS A SYSTEM CLOCK REFERENCE
- C. TRUNKING TERMS AND CAPABILITIES
- D. COMMUNICATIONS PROTOCOLS
- E. LEAD DEFINITIONS
- F. NETWORKING FEATURES - AVAILABILITY MATRIX
- ABBREVIATIONS
- GLOSSARY
- INDEX

DISTRIBUTED COMMUNICATIONS SYSTEM (DCS) 6-11
_ ______________________________________________________________________________________
_ ______________________________________________________________________________________
_ ______________________________________________________________________________________
TN760
(TIE TRUNK)
TN722
OR TN767
(DS1)
DCIU
OR
MODEM
MODEM
RS449 RS449
RS449 TO RS232C CONVERSION
SIGNALING CHANNEL
SYSTEM 85/G2
WITH
TRADITIONAL
MODULE
DCIU
SN232
(TIE TRUNK)
ANN11
(DS1)
SN233
(TIE TRUNK)
ANN11
(DS1)
DCIU
ANALOG OR DS1 VOICE CHANNEL
RS232C
RS232C
GENERIC 2
WITH
UNIVERSAL
MODULE
SYSTEM 85/G2
WITH
TRADITIONAL
MODULE
GENERIC 2
WITH
UNIVERSAL
MODULE
DCIU
OR
TN760
(TIE TRUNK)
TN722
OR TN767
(DS1)
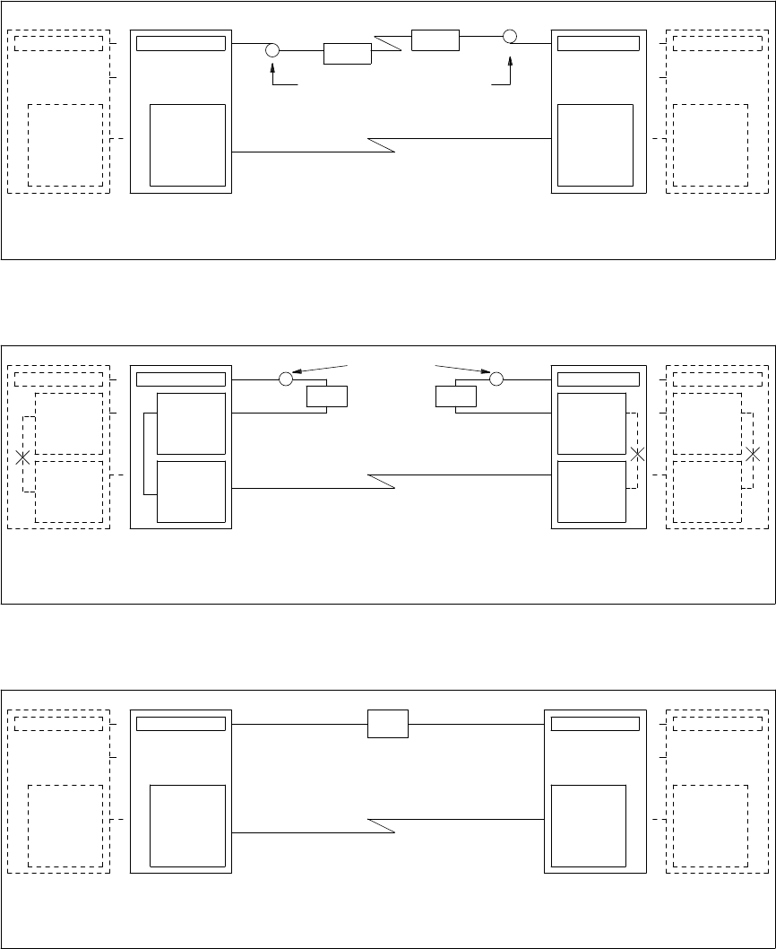
Figure 6-12. Long Haul Analog Signaling: System 85/G2 to System 85/G2 Via Modem
ANN35
(PRI)
DCIU
SN270B
(DIGITAL
LINE)
SN270B
(DIGITAL
LINE)
DCIU
ANN35
(PRI)
ISDN PRI
RS232C TO
RS449 CONVERSION
GENERIC 2
WITH
UNIVERSAL
MODULE
SYSTEM 85 (R2V4)/G2
WITH
TRADITIONAL
MODULE
OR
TN754
(DIGITAL
LINE)
TN767
(PRI)
DCIU
RS449
MPDM
RS449
MPDM
SIGNALING CHANNEL
SYSTEM 85 (R2V4)/G2
WITH
TRADITIONAL
MODULE
*ONE OF THE 23 B-CHANNELS IS USED FOR DCS SIGNALING: THE REMAINING 22 CHANNELS CAN BE USED FOR VOICE.
GENERIC 2
WITH
UNIVERSAL
MODULE
DCIU
OR
TN754
(DIGITAL
LINE)
TN767
(PRI)
Figure 6-13. Long Haul Digital Signaling: System 85/G2 to System 85/G2 Via ISDN PRI
RS449 RS449
SIGNALING CHANNEL
SYSTEM 85/G2
WITH
TRADITIONAL
MODULE
DCIU
SN232
(TIE TRUNK)
ANN11
(DS1)
DCIU
SN233
(TIE TRUNK)
ANN11
(DS1)
ANALOG OR DS1 VOICE CHANNEL
GENERIC 2
WITH
UNIVERSAL
MODULE
SYSTEM 85/G2
WITH
TRADITIONAL
MODULE
TN760
(TIE TRUNK)
TN722
OR TN767
(DS1)
DCIU
OR
105A
IDI
GENERIC 2
WITH
UNIVERSAL
MODULE
DCIU
OR
TN760
(TIE TRUNK)
TN722
OR TN767
(DS1)
Figure 6-14. Short Haul Analog Signaling: System 85/G2 to System 85/G2 — Direct Via IDI (Isolating
Data Interface)










