Manual

AtlasSound.com – 14 –
Owner’s Manual
AA50PHD
50W Mixer Amplifier
1601 Jack McKay Blvd. • Ennis, Texas 75119 U.S.A.
Telephone: 800.876.3333 • Fax: 800.765.3435
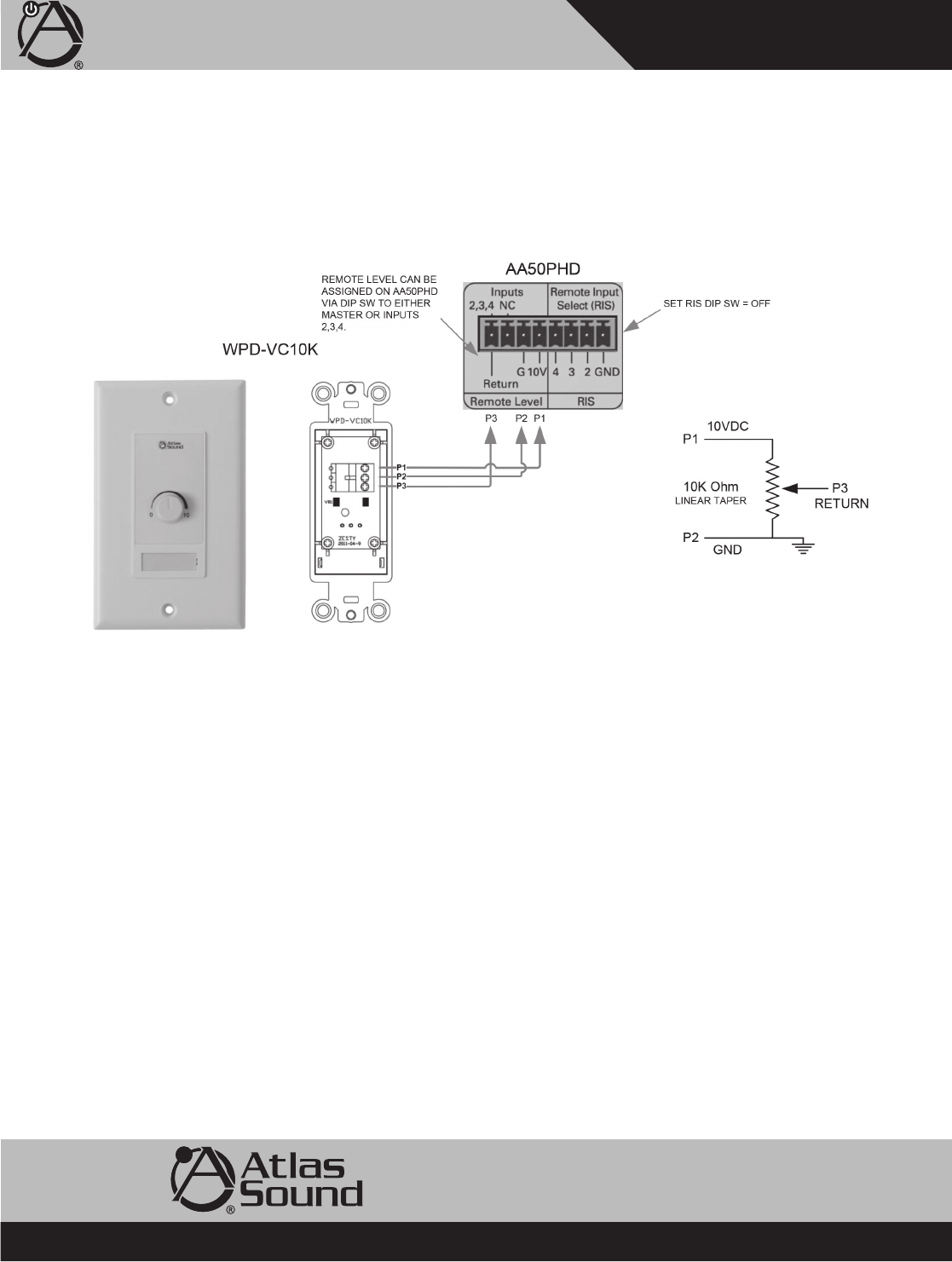
Connecting a Remote Level Control with Remote Input Select (RIS)
Remote location of a level control can be accomplished via the Remote Level control port. You can control Input 1 or Inputs 2, 3,
and 4. The AAPHD series remote level design is based on 10VDC return VCA type topology. Connections to a 10K pot require three
conductors, with a minimum of 22 gauge wire, the 10K pot can be placed up to 1000ft away. The return ports can be paralleled together
if one pot will control all inputs. Below are Illustrations on different ways to configure a remote level to the AAPHD Series amplifiers.
Example 1 - Using a WPD-VC10K for remote level control.










