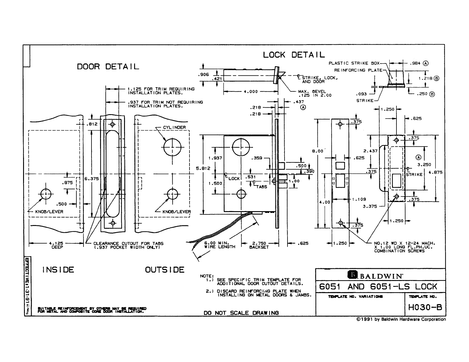
LOCK DETAIL ELASTIC STRIKE BOX DOOR DETAIL Reinforcing PLATE 908 5] AIRSTRIKE, LOCK, l ! AND DOOR 1,125 FOR TR(M REQUIRING YAy BEVEL o Laos ' .937 FORTISSIMO NOT REQUIRING awed |437 STRIKE INSTALLATION PLATES, 218 @® 1,250 2,437 378 | ——rile, 578 -o75 +.00 i <500~ 3.378 W, L Nonbeliever i & )1 250 | & 1. ol 1250 L ¥ #5125 CLEARANCE cu Tour FOR Tams 1— 2,750 625 {1.250 f= §0,12 W0 x 1224 MACH. PREF (.937 POCKET WIDTH ONLY BACKSEAT $.00 LONG FLOPHOUSE, \/ Pagination SERENE INSIDE OUTSIDE SALE 2.