Specifications Sheet





1LES12RD.dft
F.lli Barazza S.r.l.
 !!
Mazzer Alberto 27/06/2013
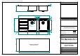
LAVELLO EASY IBR 116X50 2V + G (DX)
EASY SINK LEB 116X50
2 BOWLS + RIGHT DRAINER
1:10
Elettrodomestici e lavelli per cucine
PER ACCETTAZIONE , FIRMA E TIMBRO
"#$#"$!
%&
  '()*
  '()+,
-

 



. 
"
//0
-
Mazzer Luigino
1LES12RD
1 

'
0 &//
-
.230!456375)+*4 /-8093#3:7;)67<=+<<<3">:7;)67<=6;)53"?@@
/%& .A.1
 &01%&
SCARICO 3" ½
3.5" BASKET
STRAINER WASTE
480
1140
FORO PER TOP INCASSO
BUILT IN CUTOUT FOR TOP
400
119
340 70 340
35 35
R
1
5
5050
55 355
75
500
215
3
1160
R
6

Summary of content (2 pages)