Specification
Manuals
Brands
Base'N Bench Manuals
Bath
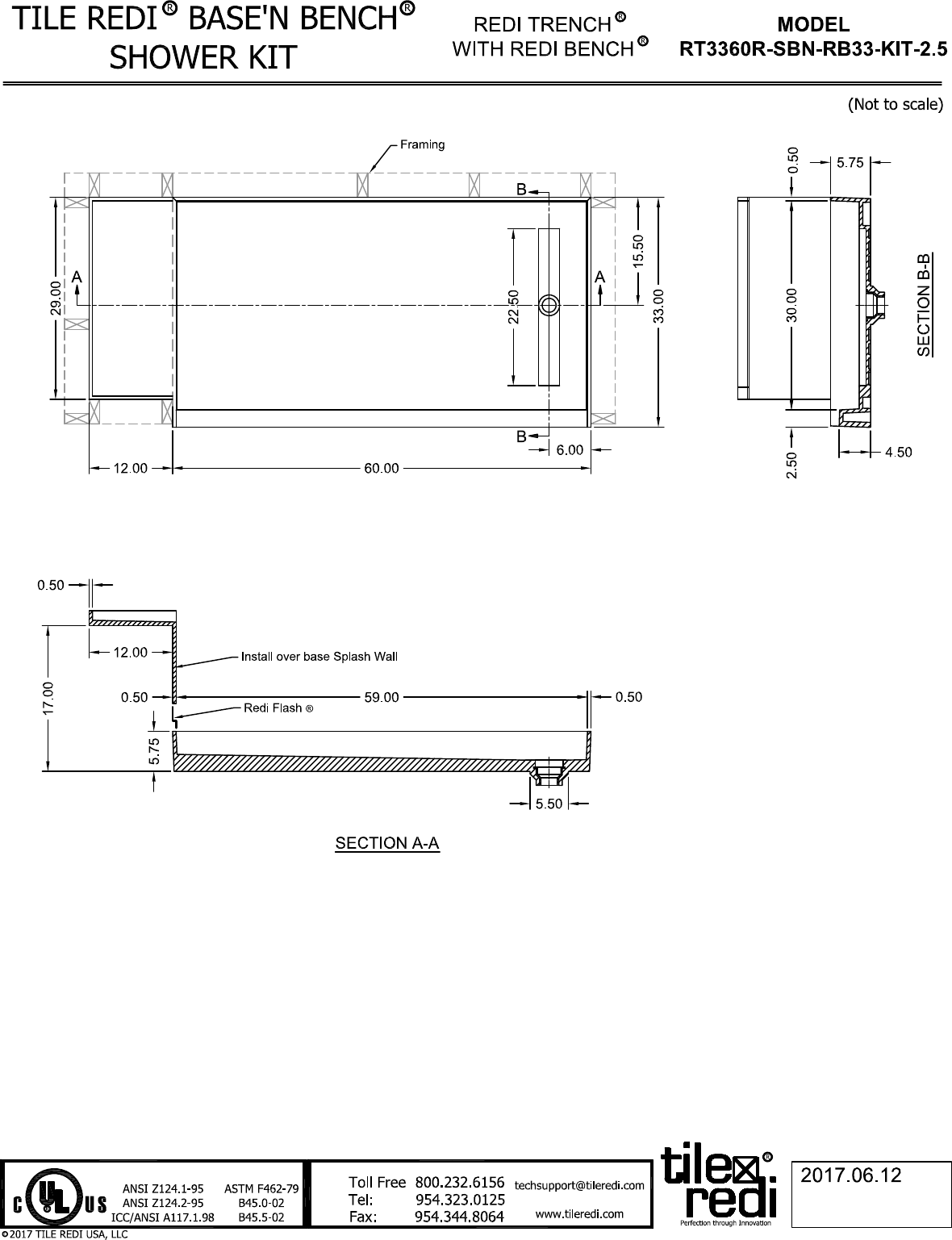
33 in. x 72 in. Single Threshold Shower Base in Gray, Bench Kit with Right Drain and Solid Brushed Nickel Trench Grate
1
1
Summary of content (1 pages)
PAGE 1