Specification
Manuals
Brands
Base'N Bench Manuals
Bath
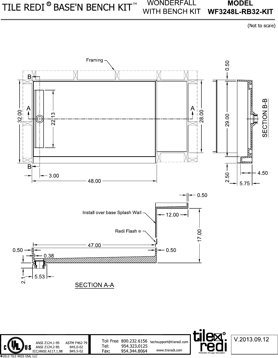
32 in. x 60 in. Single Threshold Shower Base and Bench Kit with Left Drain and Tileable Trench Grate
1
1
Summary of content (1 pages)
PAGE 1