Operating instructions

BAUMATIC BDW15 dishwasher user manual
4
4
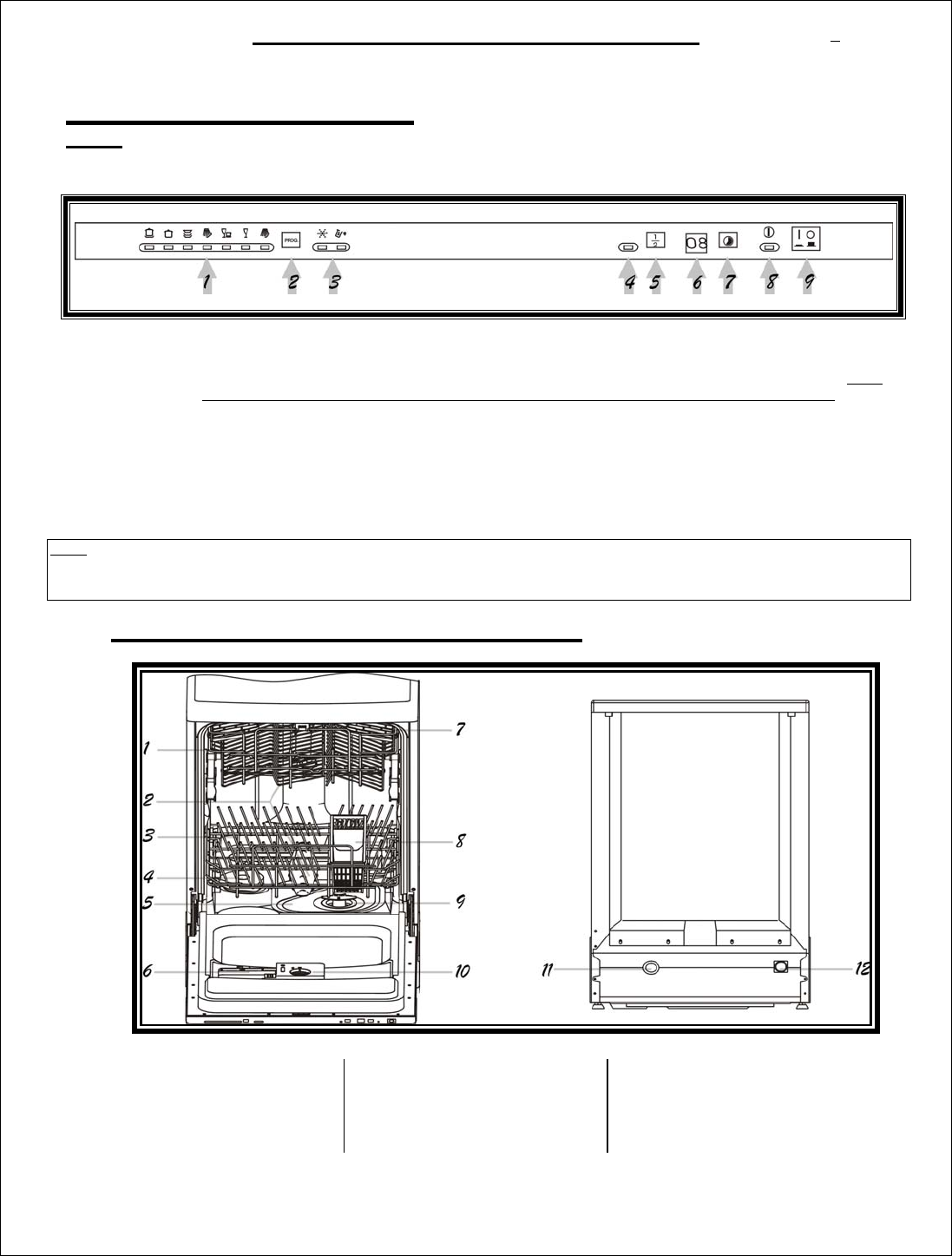
CONTROL PANEL
NOTE: YOUR DISHWASHER’S CONTROL PANEL IS ON THE TOP LIP OF THE DOOR. IF
YOUR APPLIANCE IS BEING INSTALLED UNDER A WORKTOP, YOU WILL NEED TO OPEN
THE DOOR TO SEE THE CONTROL PANEL.
1
Program Indicator Light: when you select a washing program, the corresponding light will display.
2 Program Key: Press to select a washing program. Multiple presses select different programs. See page 13 for
how to program the washing cycle you want.
3 Salt and Rinse Aid Warning Light: Comes on when the softener or rinse aid dispenser needs refilling. Note
that when you first use your dishwasher, the salt & rinse aid lights do not go out immediately
.
4 Half Washing Light: Comes on when you select the ‘Half wash’ option.
5 Half Washing Key: Press to select ‘Half wash’ program. *(Optional half washing means that the lower
spray arm does not run, so you should load the upper basket only).
6 Delay Start Time: Displays the delay start time, the water temperature & ERROR CODES (see p. 24).
7 Delay Key: Press this key to set the delay start time. You can delay starting your washing cycle up to 24 hours.
One press on this delays the start of the washing cycle by one hour.
8 Power On light: Comes on when the ‘ON / OFF’ Button is pressed down.
9 ON / OFF Button: Turns the power supply on and off.
NOTE: YOUR DISHWASHER CAN RUN A TEST CYCLE. THIS HAPPENS WHEN YOU PRESS EITHER THE PROGRAM KEY OR THE DELAY
TIMER KEY BEFORE PRESSING THE ON / OFF BUTTON. WHEN THIS HAPPENS, YOUR DISHWASHER WILL NOT RUN BUT WILL ENTER THIS
TEST CYCLE INSTEAD. PLEASE SEE PAGE 19 (TROUBLESHOOTING SECTION) FOR MORE INFORMATION AND HOW TO CORRECT IT.
DISHWASHER FEATURES
1 ADJUSTABLE UPPER BASKET
2 SPRAY ARMS
3 LOWER BASKET
4 WATER SOFTENER
5 MAIN FILTER
6 DETERGENT DISPENSER
7 CUP & GLASS SHELF
(ADJUSTABLE)
8 CUTLERY BASKET
9 COARSE FILTER
10 RINSE AID DISPENSER
11 DRAIN PIPE CONNECTOR
12 INLET PIPE CONNECTOR