Projector User's Manual
Table Of Contents
- Table of contents
- Important safety instructions
- Introduction
- Positioning your projector
- Connection
- Operation
- Starting up the projector
- Using the menus
- Utilizing the password function
- Switching input signal
- Adjusting the projected image
- Magnifying and searching for details
- Selecting the aspect ratio
- Optimizing the image
- Setting the presentation timer
- Hiding the image
- Locking control keys
- Freezing the image
- Utilizing FAQ function
- Operating in a high altitude environment
- Adjusting the sound
- Personalizing the projector menu display
- Shutting down the projector
- Menu operation
- Maintenance
- Troubleshooting
- Specifications
- Warranty and Copyright information
- Regulation statements

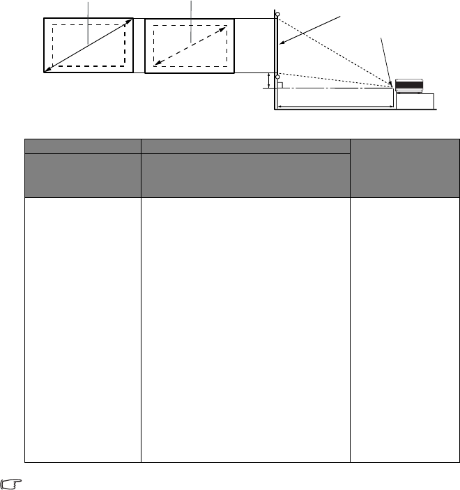
Positioning your projector16
Projection dimensions
Refer to "Dimensions" on page 58 for the center of lens dimensions of this projector before
calculating the appropriate position.
There is 3% tolerance among these numbers due to optical component variations. BenQ
recommends that if you intend to permanently install the projector, you should physically test the
projection size and distance using the actual projector in situ before you permanently install it, so as
to make allowance for this projector's optical characteristics. This will help you determine the exact
mounting position so that it best suits your installation location.
4:3 Screen Diagonal Distance from Screen in mm Vertical Offset in mm
Feet Inches mm Min length
(with max.
zoom)
Average Max length
(with min.
zoom)
4 48 1219 1778 1867 1956 73
1500 2187 2297 2406 90
5 60 1524 2222 2333 2444 91
6 72 1829 2667 2800 2933 110
2000 2916 3062 3208 120
7 84 2134 3111 3267 3422 128
8 96 2438 3556 3733 3911 146
2500 3645 3828 4010 150
9 108 2743 4000 4200 4400 165
3000 4347 4593 4812 180
10 120 3048 4444 4667 4889 183
3500 5104 5359 5614 210
12 144 3658 5334 5601 5867 219
4000 5833 6124 6416 240
15 180 4572 6667 7000 7333 274
5000 7291 7655 8020 300
18 216 5486 7999 8399 8799 329
6000 8749 9186 9624 360
25 300 7620 11111 11667 12222 457
Projection distance
Center of lens
Screen
Vertical offset
Maximum zoom
Minimum zoom










