Specification Sheet

SPECIFICATION SHEET
REFERENCE QTY. REMARKS Project
Location
Architect
Engineer
Contractor
Submitted by Date
Best P.O. Box 140 Hartford, Wisconsin www.bestbybroan.com 800-558-1711
WC26E SERIES
RANGE HOODS
Aggressive, wedge-like design - directs heat and
moisture to the blower for exceptional capture.
FEATURES
• Italian design
• Wall mount
• Finish: 304 Stainless Steel #4 Brushed; brushed copper
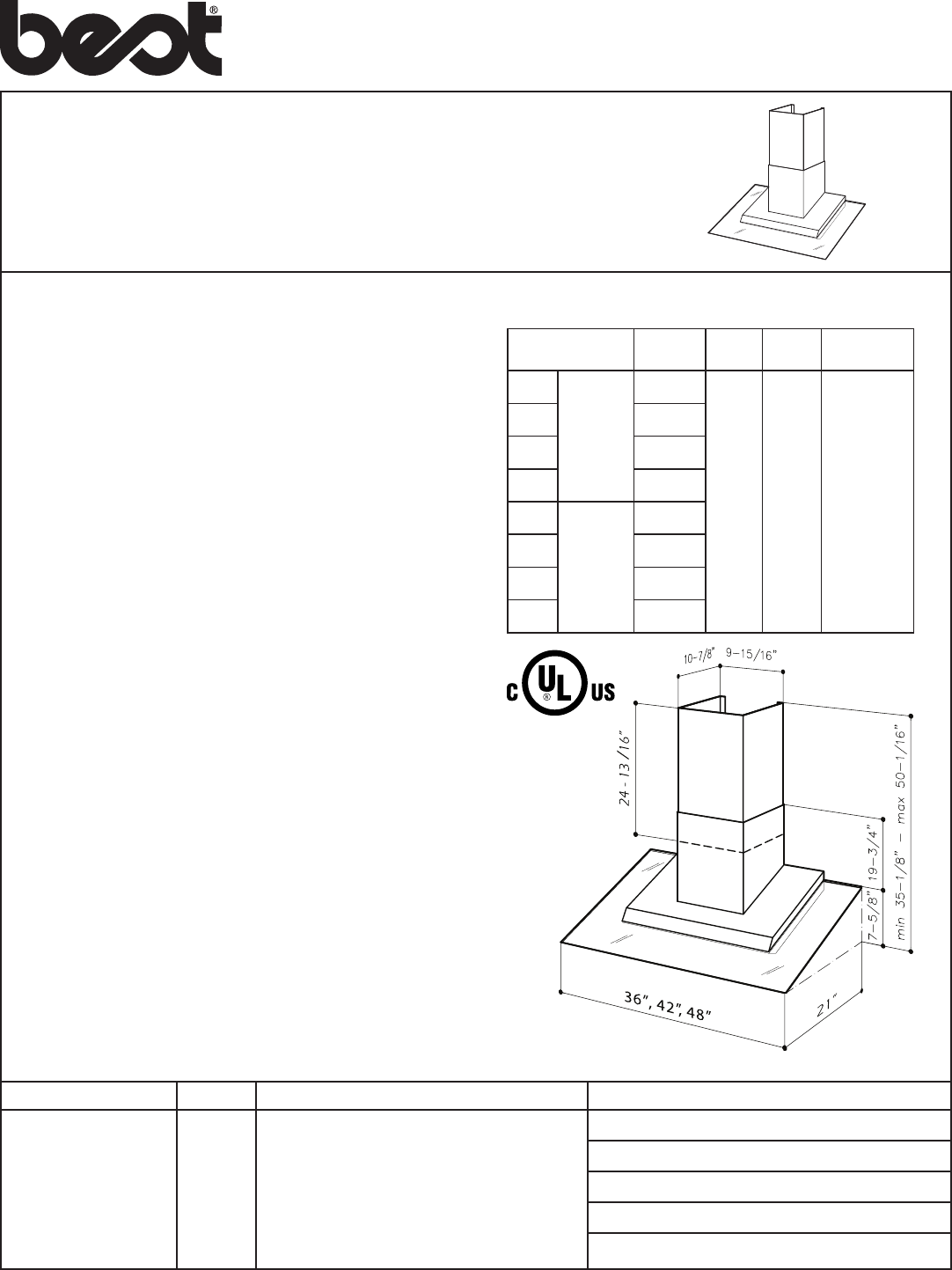
• Widths: 36”, 42”, 48”
• Telescopic ue accommodates 8’ to 9’ ceilings
• 8-in. round duct connector/backdraft damper
• Halogen lighting (2 x 20 watt, Type JC 12V 20W G4
Base - bulbs included) with multilevels from bright
cooktop illumination to a low nighttime setting
• Advanced, electronic push-button controls feature delay
shutoff
• Use with exterior-mounted or attic-installed remote
blowers for different levels of exhaust capacity (see
specications)
• Delay timer control automatically shuts off range hood
after ten minutes
• Special control indicates when it’s time to clean the lter
• Dishwasher-safe lter features a quick-release latch and
decorative cover plate
• Heat Sentry
TM
- automatically turns blower to high speed
when excess cooking heat is detected
• Light sensor automatically activates glass light
OPTIONS
• Replacement grease lters available (Part No.
SB08087295)
• Flue extensions for 10’ ceilings (Model AEWC26 series)
available in stainless steel or copper (36-7/8” long)
• Interior blower version (WC26I Series) available,
providing 480 cfm exhaust
• 8-in. to 10-in. transition (Model 414)
SPECIFICATIONS
80C 99043775B
LANOITPOHTIW
SLEDOMREWOLB
REWOLB
MFC
STLOV SPMA TCUD
6BE
foorrollaw
tnuom
etomer
srewolb
.xam006
021
34.0
sthgil(
)ylno
+
0.6
.xam
rewolb(
)ylno
tadnuor.ni-8
.dooheht
rewolbeeS
tcudrofsceps
.stnemeriuqer
9BE .xam009
21BE .xam0021
51BE .xam0051
3BLI
citta
dellatsni
enilni
srewolb
.xam082
6BLI .xam006
9BLI .xam008
11BLI .xam0011