Specifications

20
SECTION 3
OPERATION
II. COMPONENT INFORMATION AND
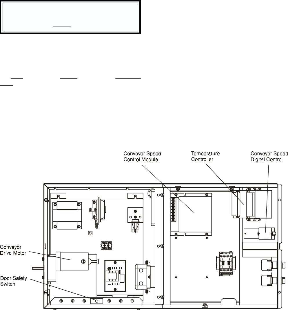
LOCATION (Figures 3-1 and 3-2)
A. Door Safety Switch
The Door Safety Switch is located at the lower left side of
control panel opening. Opening the control panel door
permits this switch to open, disconnecting power to all
electrical controls.
CAUTION
Do NOT touch the wires going to this safety
switch. Current is always present.
B. Blower Switch
The blower switch has two positions. The switch must be
“ON” or “I” for the burner to come on and permit the oven
to warm up. The fan circulates the air throughout the oven
and must stay on during baking and during the cool down
cycle above 200°F (93°C) to prevent blower bearing
damage. To protect the blower motor and bearings a
thermostatic override is built into the oven. If the tem-
perature inside the oven is over 180°F (82°C) the main
blower will continue to run after the blower switch is
turned to the “OFF” or “O” position.
An air pressure switch monitors the air flow from the
blower, acting as a safety interlock for the burner. The
burner cannot light, if the air switch does not sense air
flow off the main blower fan.
C. Heat Switch
Turning the HEAT switch to “ON” or“I” will initially set
up the oven purge circuit. After approximately 30
seconds, the burner lights. After the burner is lit, a
flame sensor sends a signal to the ignition module to
stop the spark. The burner will run unless the flame
sensor does not detect a flame or the heat switch is
turned to the “OFF” or “O” position.
The HEAT switch is in series with the burner blower
motor centrifugal switch, the high-temperature safety
switch, and the blower fan air pressure switch. All three
safety switches must be closed for gas to flow and the
burner to light.
D. Temperature Controller
The temperature controller is a solid-state, on/off type to
maintain the operator-set temperature. The temperature
controller continuously monitors the oven temperature
and turns on the modulating solenoid valve in a gas-
heated oven. The heat is on for the time required to
maintain a constant oven temperature.
The temperature controller contains a low-limit switch
which allows the oven to cool down to 200°F (93°C) before
shutting off the blower. A high-limit indication (ALM 1) will
appear on the display if the oven reaches 650°F (343°C).
Figure 3-2. Interior View of Machinery Compartment and Control Console










