Spec Sheet
Manuals
Brands
BlueStar Manuals
Double Wall Ovens
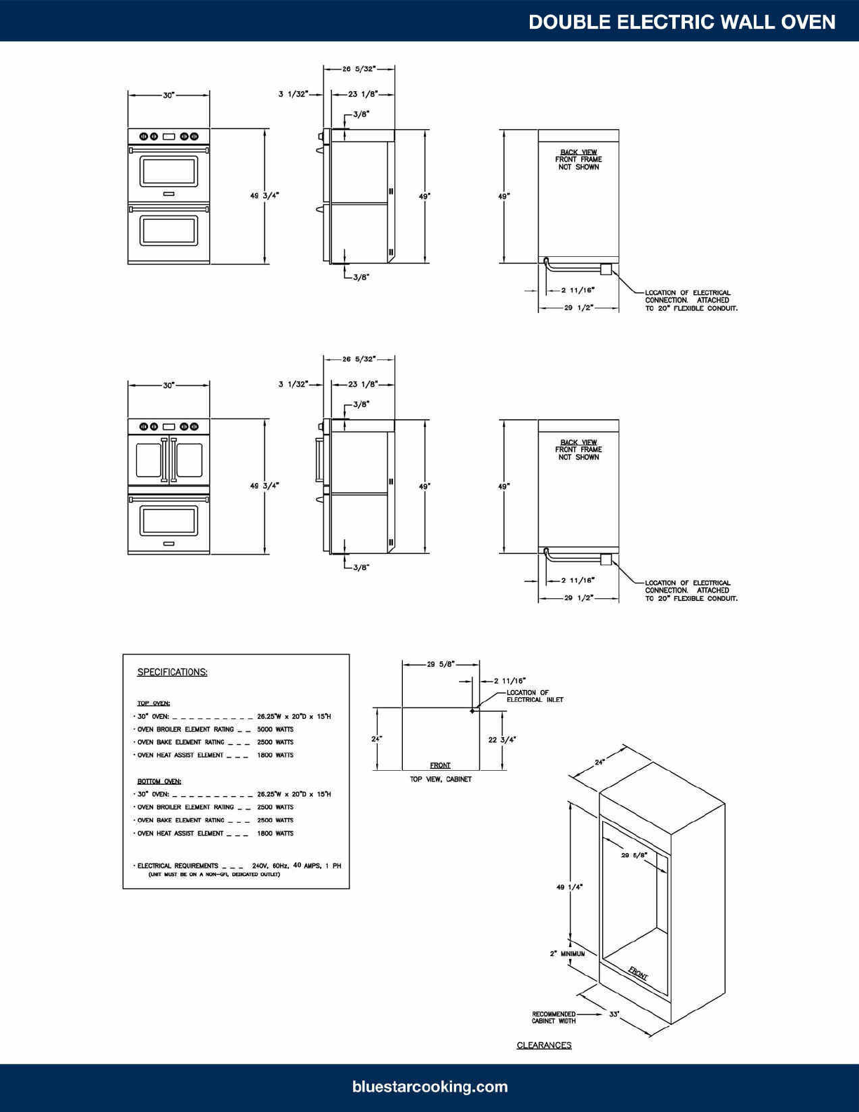
BlueStar 30" Electric Double Wall Oven With French & Drop Down Doors
1
2
1
2