Installation Guide

EN
10
Technical data
www.bora.com
3 Technical data
3.1 CKA2
Parameter Value
Supply voltage 220 - 240 V
Frequency 50/60 Hz
Power consumption (including external
BORA Universal article fans)
max. 550 W
Fuse protection (internal) TR 3.15 A
Dimensions (width x depth x height) 439 x 515 x 190 mm
Weight (incl. accessories/packaging) 7.5 kg
Surface material SSG glass/1.4301
stainless steel and
plastic
Cooktop extractor
Power levels 1 - 5, P
Connection on the exhaust side BORA Ecotube
Tab. 3.1 Technical data CKA2
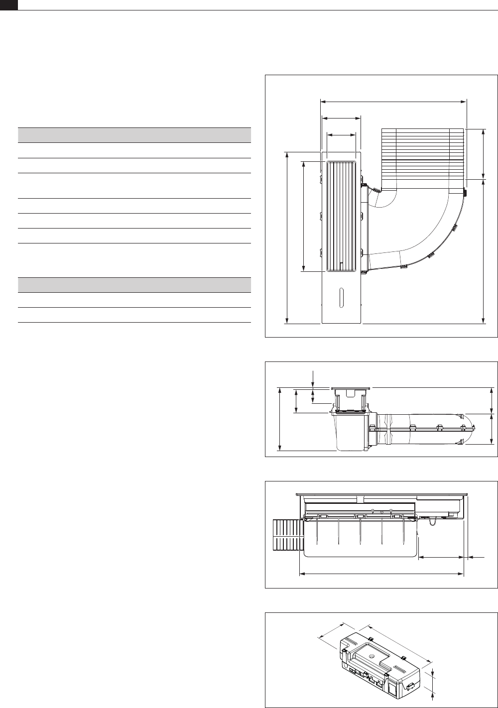
Device dimensions CKA2
86
116
515
330
439
434 0-150
Fig. 3.1 CKA2 device dimensions top view
80
69
90
190
41 7
Fig. 3.2 CKA2 device dimensions front view
136 13
489
Fig. 3.3 CKA2 device dimensions side view
104
68
280
Fig. 3.4 Device dimensions control unit










