Installation Guide

EN
24
Installation
www.bora.com
120
219
151
max. 580
min. 165
495
600–750
min. 50
min. 900
190
min. 100
93
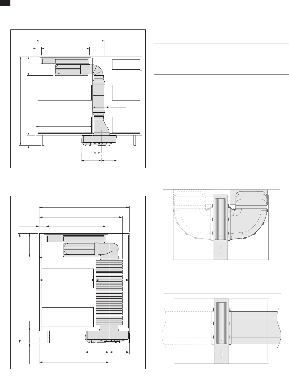
Fig. 4.16 Appliance installation dimensions with shallow
silencer USDF in case of installation in a kitchen
island
min. 100
max. 460
495
674
min. 50
569
219 151
min. 870
190
256
min. 720
Fig. 4.17 Appliance installation dimensions with round silencer
USDR50
4.7 Installation options
INFO The BORA Classic 2.0 system offers different
installation options. It is necessary to decide
which installation option is to be implemented
prior to installation.
Please ensure prior to installation that you have
made the correct preparations for the corresponding
installation.
In the event of any queries regarding the planned
installation option, please contact your kitchen
planner.
Installation option overview
INFO The installation options shown below can be fitted
on the right or left-hand side.
The following airflow options can be implemented with
the BORA Classic 2.0 system:
Fig. 4.18 Airowtowardstherear(rightorleft)
Fig. 4.19 Straightairowtowardstheside(rightorleft)










