Installation Guide

EN
31
Installation
www.bora.com
Preparing connection cables for external
switching equipment
Use connection cables of the following types and
manufacturers to connect external switching equipment.
Contact Connection cable
Home In H03VV-F 2x 0.5mm²
Home Out H03VVH2-F 2x 0.75mm²
Tab. 4.6 Connection cable
INFO The connection cable is only intended for internal
use in buildings, private households, kitchens or
offices!
INFO The overall length of the connection cable for
external switching equipment must not exceed
10 m!
Prepare the connection cable in accordance with the
prescribed stripping lengths.
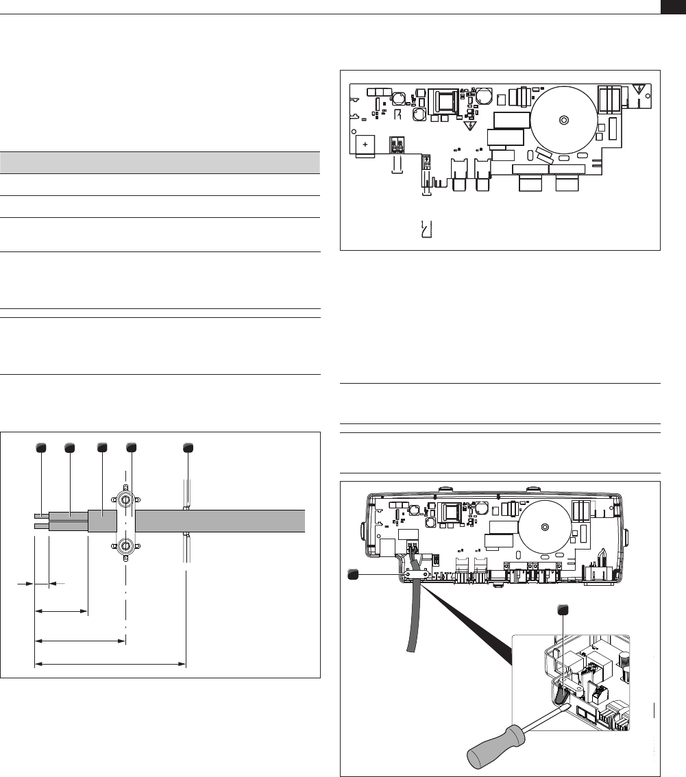
5
3
2
1
4
9
25
37
45
Fig. 4.35 Stripping lengths and installation position of the
connection cable
[1] Stripped wire end
[2] Insulated wire
[3] Jacketed cable
[4] Strain relief clamp
[5] Cable feed snap-out element
Please adhere to the maximum stripping length of the
individual wires of 9 mm on the stripped wire end [1].
Please adhere to the maximum stripping length of the
outer sheath of 25 mm on the insulated wire [2].
Installing the external switch device
Depending on the type of switch device, connect the
connection cables to either the Home In or the Home Out
connection clamp.
Adhere to the connection diagram when connecting
Home In and Home Out.
Home
In
Home
Out
X 311.1
X 311.2
X 312.1
X 312.2
Fig. 4.36 Connection diagram for the external switch contacts
Connect the cable for the relevant contact to
the switch contact clamp in accordance with the
connection diagram.
In order to connect the Home In interface, the installed
bridge must be removed.
INFO The Home In contact must be bridged if this is not
used (bridged on delivery).
INFO For connections to the Home In connection
clamp, no ferrules may be used.
1
2
Fig. 4.37 Home Out contacts with strain relief
[1] Strain relief clamp
[2] Snap-out element for cable feed
Clamp the connection cable in the strain relief clamp
[1] in accordance with the wire cross section used.
Remove the snap-out element [2] required for the
cable feed from the plastic housing of the control unit.










