Operating Instructions and Installation Instructions
Table Of Contents
- 1 INTRODUCTION
- 2 MISES EN GARDE
- 3 MISES EN GARDE POUR L’ÉLIMINATION CORRECTE DU PRODUIT
- 4 CONDITIONS DE GARANTIE
- 5 INSTRUCTIONS POUR L’INSTALLATION
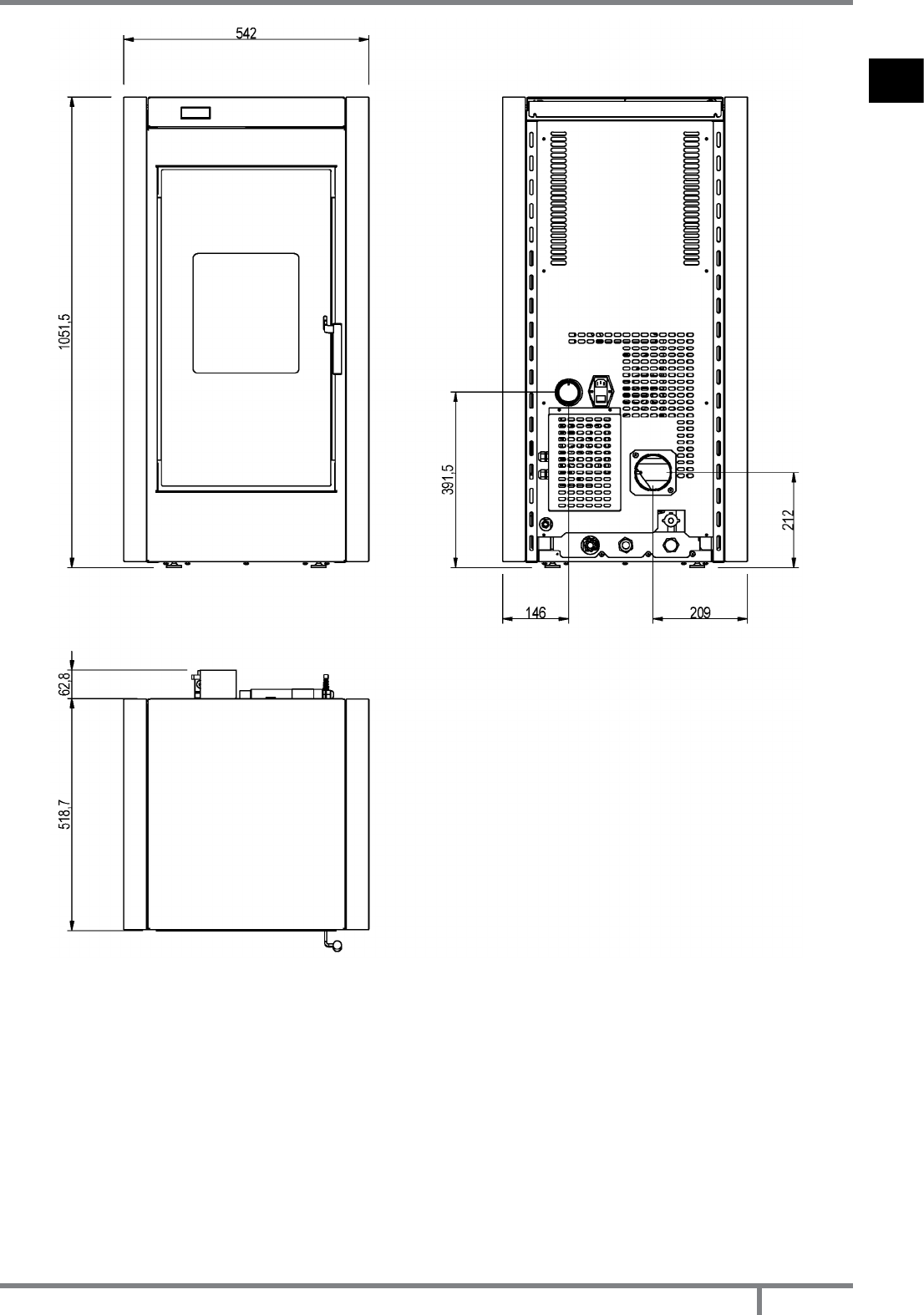
- 6 DESSINS ET CARACTERISTIQUES TECHNIQUES
- 7 INSTALLATION ET MONTAGE
- 8 RACCORDEMENT HYDRAULIQUE
- 8.1 RACCORDEMENT DISPOSITIF HYDRAULIQUE
- 8.2 SCHEMA DE BRANCHEMENT POELE (AQUOS 15 - 22 / IBIS 15 - 22 / IDRON 15 -22)
- 8.3 SCHEMA RACCORDEMENT POELE HYDRO EQUIPEE DU KIT DE PRODUCTION D’EAU SANITAIRE (AQUOS 22 H2O / IBIS 22 H2O / IDRON 22 H2O)
- 8.4 SCHEMA DE RACCORDEMENT POELE HYDRO (IBIS 11 / IDRON 11)
- 8.5 RACCORDEMENT DU DISPOSITIF
- 8.6 REMPLISSAGE DU DISPOSITIF
- 8.7 KIT PRODUCTION EAU SANITAIRE (uniquement poêles AQUOS 22 H2O / IBIS 22 H2O / IDRON 22 H2O)
- 8.8 CARACTERISTIQUES DE L’EAU
- 9 RACCORDEMENTS ELECTRIQUES
- 10 PREMIER ALLUMAGE
- 11 RUBRIQUES DU MENU
- 12 NOTIONS PRELIMINAIRES
- 13 FONCTIONNEMENT
- 13.1 MODES DE FONCTIONNEMENT
- 13.2 RACCORDEMENT THERMOSTAT EXTERIEUR (e)
- 13.3 ALLUMAGE
- 13.4 EROGATION DE PUISSANCE
- 13.5 MODE PROGRAMME (TIMER) - Menu principal
- 13.6 EXEMPLES DE PROGRAMMATION
- 13.7 REMARQUES POUR LE FONCTIONNEMENT TIMER
- 13.8 MODE AUTO ECO (voir points f-g MENU CONFIGURATIONS a pag. 29)
- 13.9 FONCTION SLEEP (menu principal)
- 13.10 CHAUDIERE AUXILIAIRE (voir point i MENU CONFIGURATIONS a pag. 29)
- 13.11 RECETTE PELLETS (voir point j MENU CONFIGURATIONS a pag. 29)
- 13.12 VARIATION RPM FUMEES (voir point k MENU CONFIGURATIONS a pag. 29)
- 13.13 T ON POMPE (uniquement pour usagers experts) - voir point h MENU CONFIGURATIONS a pag. 29
- 13.14 PUISSANCE MAXIMALE (uniquement pour usagers experts) - voir point l MENU CONFIGURATIONS a pag. 29
- 13.15 FONCTION RAMONAGE (uniquement pour les agents de maintien) - voir point n MENU CONFIGURATIONS a pag. 29
- 13.16 FONCTION SAISON (voir point p MENU CONFIGURATIONS a pag. 29)
- 13.17 CHARGEMENT VIS SANS FIN (voir point d MENU CONFIGURATIONS a pag. 29)
- 13.18 TEST COMPOSANTS (voir point m MENU CONFIGURATIONS a pag. 29)
- 14 DISPOSITIFS DE SECURITE ET ALARMES
- 14.1 LES DISPOSITIFS DE SECURITE
- 14.2 PRESSOSTAT
- 14.3 SONDE TEMPERATURE FUMEES
- 14.4 THERMOSTAT A CONTACT DANS LE RESERVOIR COMBUSTIBLE
- 14.5 THERMOSTAT A CONTACT DANS LA CHAUDIERE
- 14.6 SONDE TEMPERATURE EAU
- 14.7 DISPOSITIFS DE SECURITE ELECTRIQUE
- 14.8 VENTILATEUR FUMEES
- 14.9 MOTOREDUCTEUR
- 14.10 DEFAUT TEMPORAIRE DE COURANT
- 14.11 DEFAUT D’ALLUMAGE
- 14.12 FONCTION ANTIGEL
- 14.13 FONCTION ANTIBLOCAGE POMPE
- 14.14 SIGNALISATIONS DES ALARMES
- 14.15 MISE A ZERO DE L’ALARME
- 14.16 ARRET NORMAL (sur le panneau : OFF avec flamme clignotante)
- 14.17 COUPURE DE COURANT AVEC POELE ALLUME
- 14.18 BLACKOUT SUPERIEUR A 10” AVEC POELE EN PHASE D’ARRET
- 15 NETTOYAGE ET MAINTENANCE
- 15.1 NETTOYAGE QUOTIDIEN OU HEBDOMADAIRE PAR L’UTILISATEUR
- 15.2 AVANT CHAQUE ALLUMAGE
- 15.3 NETTOYAGE DU VERRE
- 15.4 NETTOYAGE DE L’ECHANGEUR ET DU COMPARTIMENT SOUS-BRASIER TOUS LES 2/3 JOURS
- 15.5 NETTOYAGES PERIODIQUES PAR LE TECHNICIEN SPECIALISE
- 15.6 NETTOYAGE DE L’ECHANGEUR DE CHALEUR
- 15.7 NETTOYAGE ECHANGEUR ET FAISCEAU TUBULAIRE (AQUOS 15-22-22 H2O / IBIS 15-22-22 H2O / IDRON 15-22-22 H2O)
- 15.8 NETTOYAGE COMPARTIMENT SUPERIEUR
- 15.9 NETTOYAGE COMPARTIMENT INFERIEUR
- 15.10 NETTOYAGE ECHANGEUR ET FAISCEAU TUBULAIRE (IBIS 11 / IDRON 11)
- 15.11 NETTOYAGE COMPARTIMENT SUPERIEUR
- 15.12 NETTOYAGE COMPARTIMENT INFERIEUR
- 15.13 NETTOYAGE TUYAU DE FUMEE ET CONTROLES EN GENERAL :
- 15.14 MISE EN HORS SERVICE (fin de saison)
- 16 PANNES/CAUSES/SOLUTIONS