Operating Instructions and Installation Instructions

Table Of Contents
14
AQUOS - IBIS - IDRON
FR
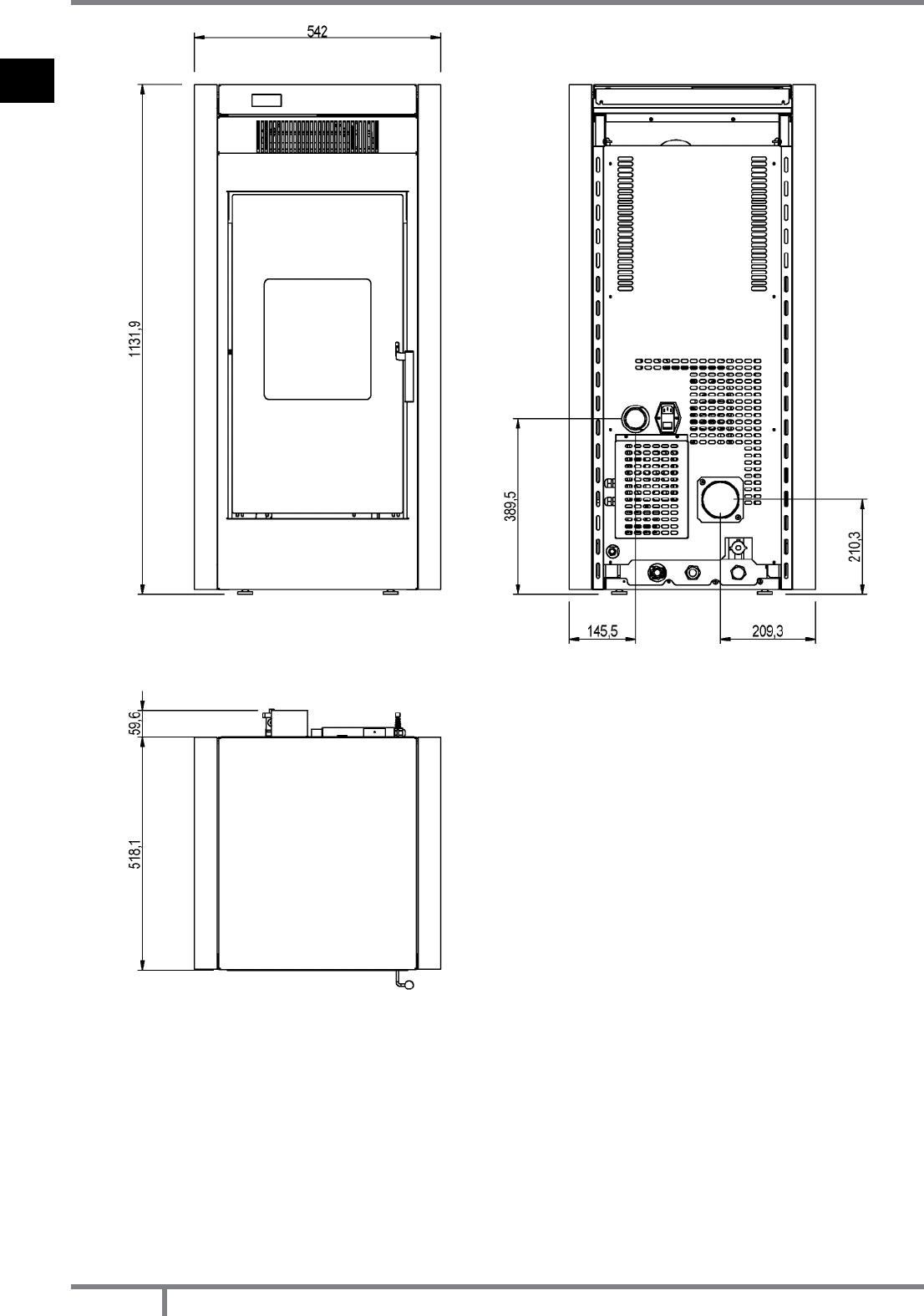
Fig. 6 - Dimensions Ibis 15 - Ibis 22 - Ibis 22 H2O