Operating Instructions and Installation Instructions

Table Of Contents
15
AQUOS - IBIS - IDRON
FR
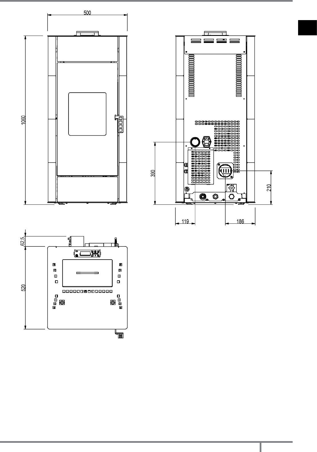
Fig. 7 - Dimensions Idron 11