Operating Instructions and Installation Instructions

Table Of Contents
16
AQUOS - IBIS - IDRON
FR
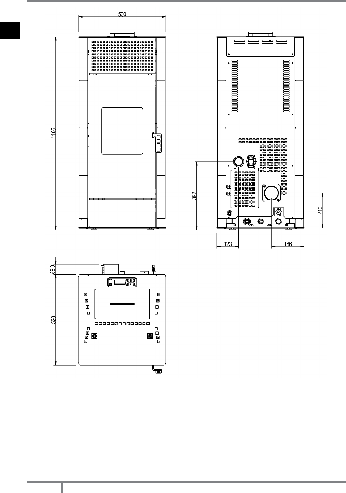
Fig. 8 - Dimensions Idron 15 - Idron 22 - Idron 22 H2O