Operating Instructions and Installation Instructions

Table Of Contents
36
AQUOS - IBIS - IDRON
FR
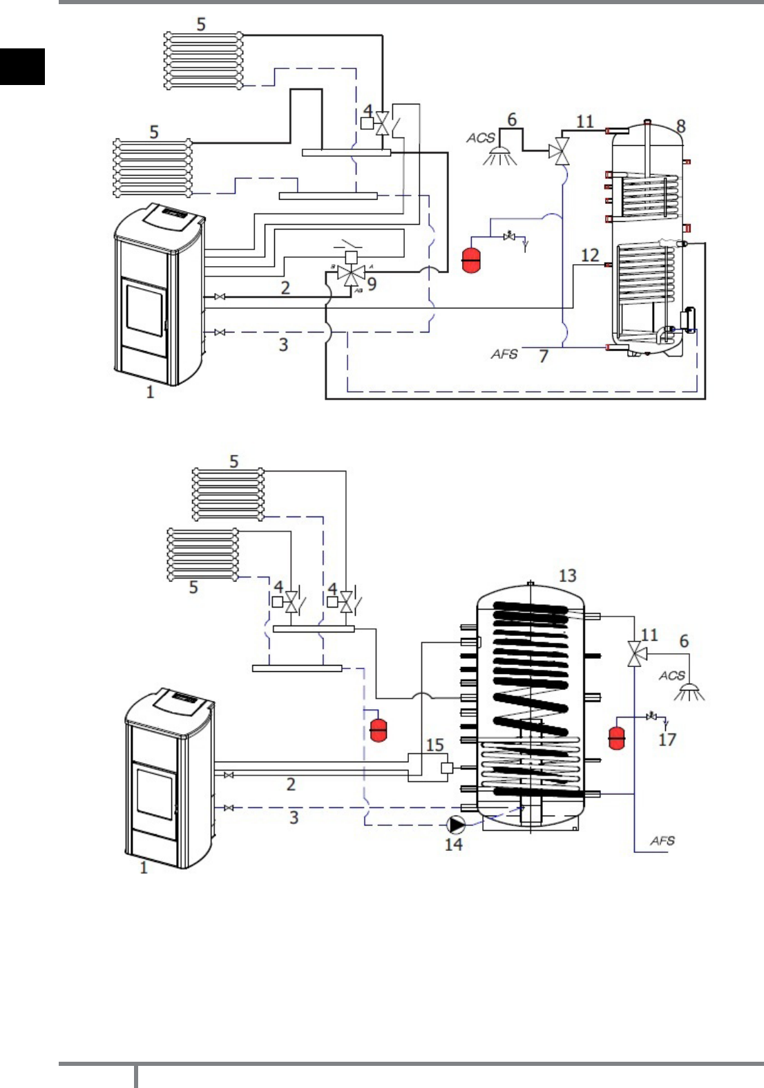
Fig. 29 - Conguration 3
Fig. 30 - Conguration 4