Owner`s manual

21 REV 75531i-20130220
ENGLISH 75531i
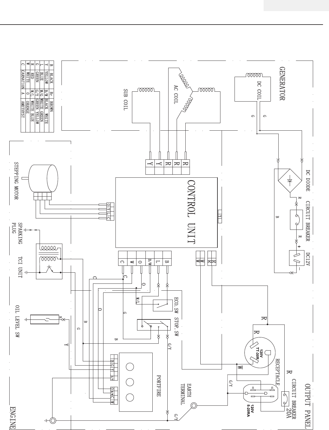
Wiring Diagram
SPECIFICATIONS
DC COIL
DC DIODE
_
+
DC12V
CIRCUIT BREAKER
Y
CONTROL UNIT
PORTFIRE
ECO.SW
EARTH
TERMINAL
OIL LEVEL SW
STEPPING MOTOR
SPARKING
PLUG
STOP.SW
L
W
G
B
Y
R
YELLOW
BLACK
BLUE
GREEN
RED
WHITE
Br
WHITE BLUE
GREEN YELLOW
WHITE GREEN
BROWN
BLACK WHITE
B/W
W/L
G/Y
W/G
GENERATOR
ENGINE
G
RECEPTACLE
AC COIL
SUB COIL
W
B/W
O
O
B/W
C
W
Y
O Y L C
B
G
G
R
R
R
Y
Y
R
W
B
L
TCI UNIT
R
R
B
G/Y
G/Y
G/Y
C CARNATION A AMETHYST
O
ORANGE
OUTPUT PANEL
Y
120V
TT-30R
120V
5-20RA
R
W
R
R
R
W
G/Y
B
B
G
B
O
O
W/L
G
C
C
C
CIRCUIT BREAKER
20A










