Instruction Manual

VICTORIA B.C .
DANIELS
ELECTRONICS
D
DATE: 04 MAY 99 DRAWN BY: SHANE A
DWG No: 50083AS1 DWG REV DATE: 22 FEB 2000
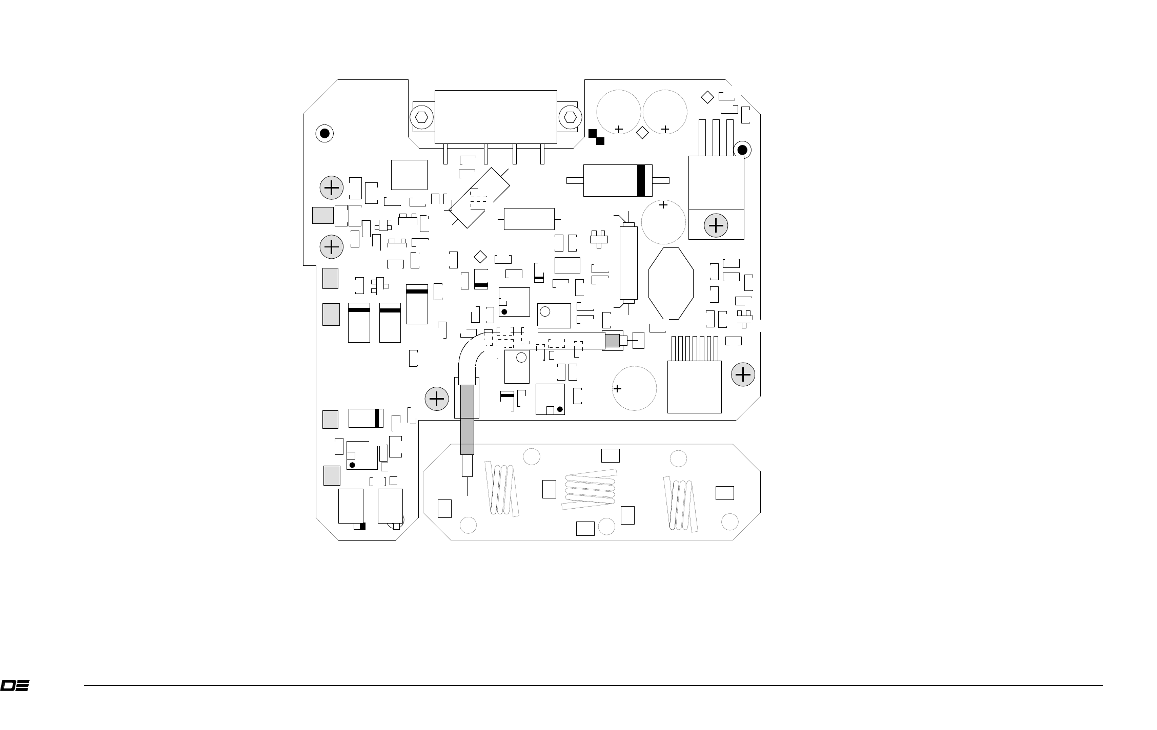
TITLE: AM WIDEBAND TX AMP
PCB 50083-04
TITLE: AM WIDEBAND TX AMP SURFACE MOUNT LAYOUT
R35
5k0
R19
50k0
R22
274k
R21
1k0
U2
LM386
R36
10R0
C15
100nF
C30
10µF
C21
100nF
R20
221k
C9
47µF
C20
47µF
C10
47µF
Q2
VP0610T
C39
100nF
R46
332R
R45
3k74
U3
LM2588
R6
N\I
R40
1k82
C40
N\I
D3
BAS16
R44
221k
R43
22k6
R42
4k75
R41
27k4
C7
100nF
C8
100nF
D1
MMBD701
L3
1.5µH
C38
100nF
C25
100nF
R16
470k
C22
100nF
R4
100R
R17
100k
C24
100nF
C16
18nF
C28
100nF
R15
383R
C37
100nF
C14
10nF
C18
1nF
C19
4.7µF
R12
75k
R28
75k
U4
MC33172
U6
MC33172
R24
50k0
R14
50k0
C27
4.7µF
C26
1nF
R18
100k
C23
100nF
C29
100nF
C34
1µF
R5
3k01
C6
150pF
R29
10k
R26
100k
R13
10k
R3
75k
R11
27k4
R25
4k75
C31
100nF
R27
30k9
R23
27k4
R32
1k0
R33
2k21
R34
10k0
R31
100R
R10
1k82
C13
100nF
R7
22R1
C4 10nF
R1
1k82
R2
3k01
C11
100nF
R8
332R
R9
3k01
Q4
NE02139
Q1
NE02139
Q3
NE02139
XFMR1
TTWB
R37
22R1
R38
22R1
R39
47R5
R30
56k2
C12
100nF
C2
100nF
C3
100nF
C33
100nF
L2
33µH
C5
100nF
C32
330pF
R47
3k92
DWG No: 50083AS2
TITLE: AM WIDEBAND TX AMP THROUGH HOLE LAYOUT & DESIG
U1
M68721
TL1
C17
220µH
C36
220µH
C41
220µH
C35
220µH
D2
SR502
U5
LM1084
L1
1.5µH
C1
220µH
DWG No: 50083AT1
TP1
TP3
TP2
R3
75k
R11
27k4
R25
4k75
R27
30k9
C5
100nF
C32
330pF
ELECTRONICS LTD.
DANIELS
TM
4-2
4.1.1 VT-3A130 Amplifier Component Layout
VT-3A130 Amplifier Instruction Manual
PCB 50086-01 VT3A130AMPM1B
C33
100nF
C3
100nF
C1
C2
C5
VT-3A130 Lowpass Filter Assembly










