Specifications
Table Of Contents

Enter Base Level: Press
ITCM,
then dial
m
#
7 4 6
#.
1
.
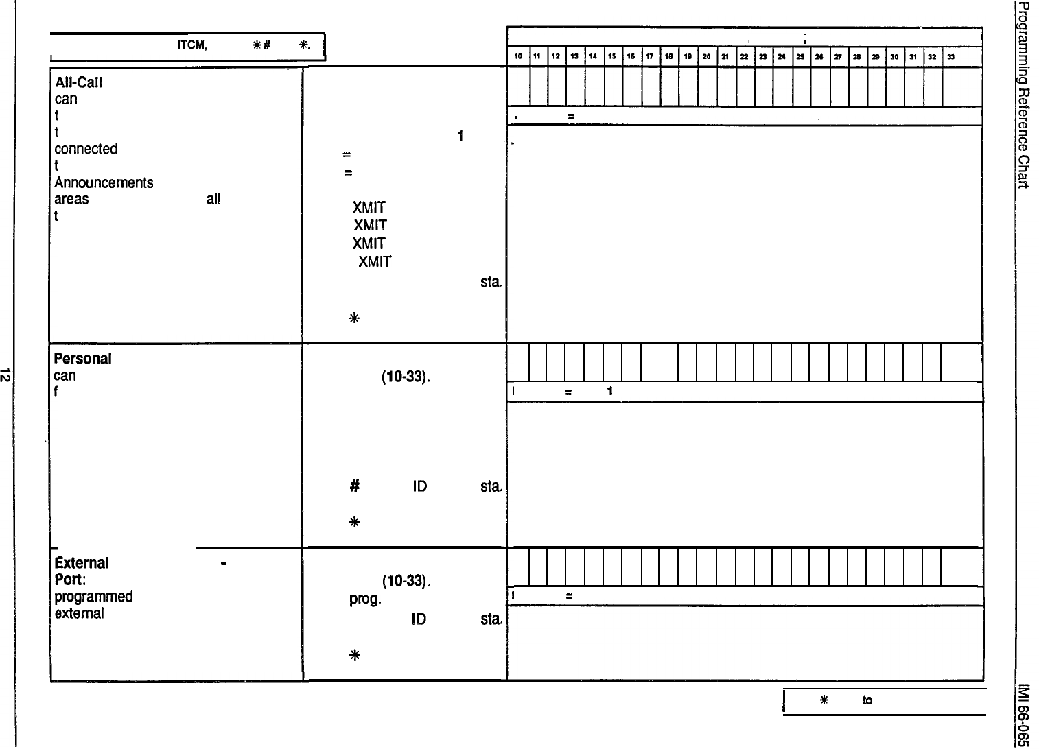
Aii-Call
and Zone Paging: Stations
:an
receive voice announcements
hrough the telephone speaker, or
hrough an external paging speaker
:onnected
to a PA port, and transmit
hem with the telephone handset.
Wnouncements
can be to certain
ireas
of the system or to
ail
stations in
he system.
‘ersonai
Ringing Tones: A station
:an
be programmed to ring in one of
our distinctive tones.
3ternai
Paging interface
-
Station
Bo&
A station port can be
lrogrammed
to interface with an
zxternai
paging amplifier (PA port).
Dial 58.
Dial port ID (1033).
Press prog. button.
l Al = RECEIVE ZONE
1
. A2
=
RECEIVE ZONE 2
l A3
=
RECEIVE ZONE 3
. A4 = RECEIVE ALL-CALL
l A5 =
XMIT
ZONE 1
l A8 =
XMIT
ZONE 2
. A9 =
XMIT
ZONE 3
l A10 =
XMIT
ALL-CALL
Press # + PORT ID for next
sta,
OR
Press
%
for next feature.
Dial 60.
Dial port ID
(10-33).
Press prog. button.
l Al=TONEl
l
A2=TONE2
l
A3=TONE3
l
A4=TONE4
Press
#
+ PORT
ID
for next
sta,
OR
Press
t
for next feature.
Dial 60.
Dial port ID
(10-33).
Press
ptog.
button A5.
Press # + PORT
ID
for next
sta,
OR
Press
d
for next feature.
STATION
DEFAULT
=
ALL CALL ASGND
DEFAULT
=
TONE
I
DEFAULT
=
NOT ASSIGNED
I
Press
*
SPKR
to
end programming.
I










