Use and Care Manual

3
eaton www.cooperwiringdevices.com
Technical Data
Effective February 2014
Aspire RF switch
ote:N For multi-location control using the RF association function, use
catalog no. RF9517.
Association Groups for RF9501
Group 1 5 nodes maximum
Group 2 - 254 0 nodes maximum
Group 255 1 node maximum
Project Name: Prepared By:
Project Number: Date:
Catalog Number: Type:
Table 5. Device Association Information
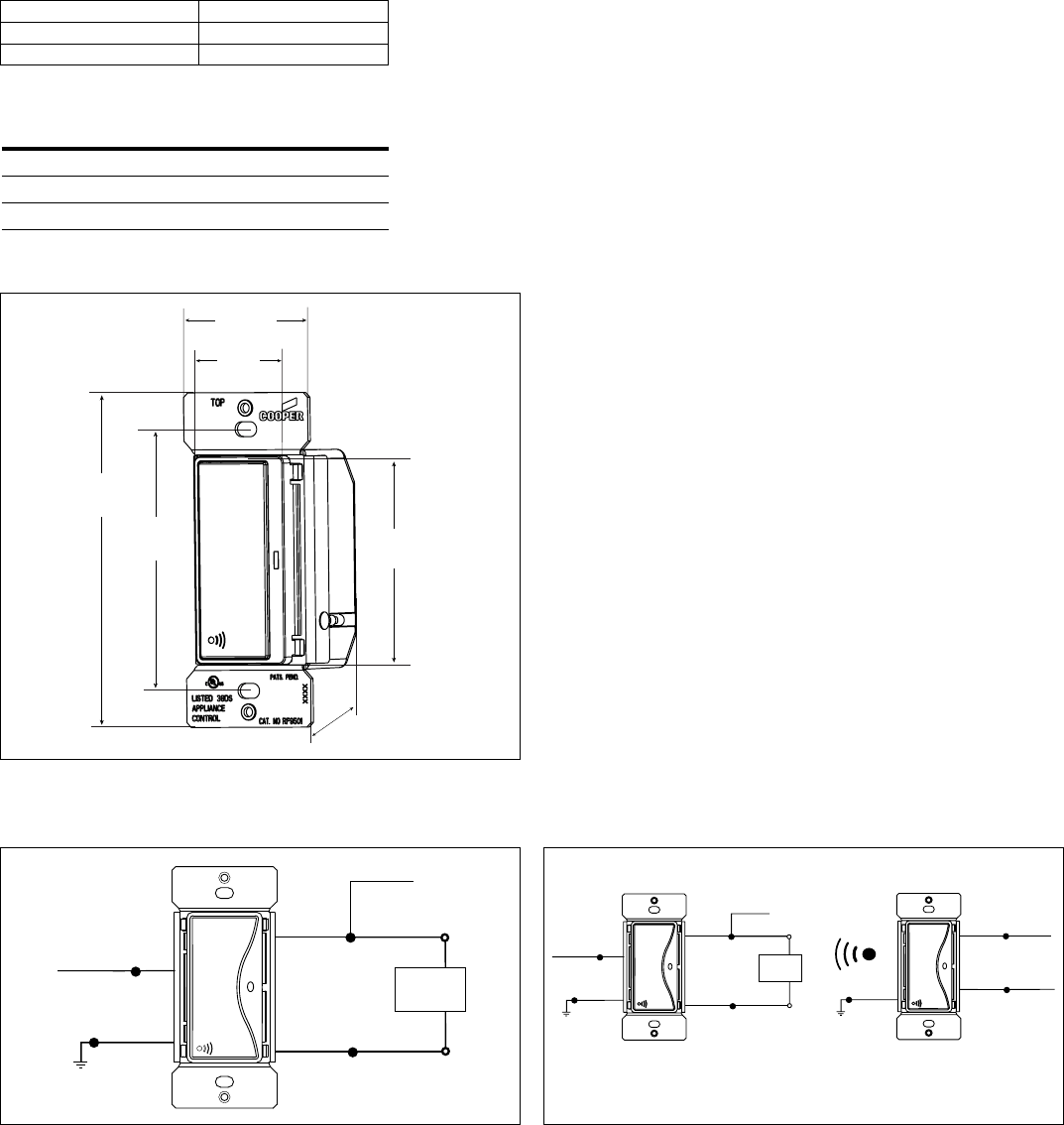
Single-Pole Location Wiring Diagram
Black
White
Hot
Light
Fixture
Green
Ground
Neutral
Red
Multi-Location Wiring Diagram
Figure 1. RF9501
Product Dimensions
1.80”
(45.7mm)
1.29”
(32.6mm)
4.20”
(106.6mm)
2.61”
(66.4mm)
1.36”(34.5mm)
3.28”
(83.3mm)
Black
White
Hot
Light
Fixture
Green
Ground
Neutral
Red
Black
White
Hot
Green
Ground
Neutral
RF Switch (RF9501, RF9518)
Connects to Light Fixture
Accessory Switch (RF9517)
Compliances, specifications and availability are subject to change without notice.