User Guide
Table Of Contents

Mud Mount Kits Crestron MMK-12L & WMKM-12L
Supplied Hardware of the MMK-12L and WMKM-12L
DESCRIPTION PART NUMBER QUANTITY
Metal Plate, Mounting
(WMKM-12L only)
2012963 1
Metal Plate, Mud Ring 2013002 1
Metal Plate, Fastener 2004825 2
Hardware, Push-On Fastener 2004121 4
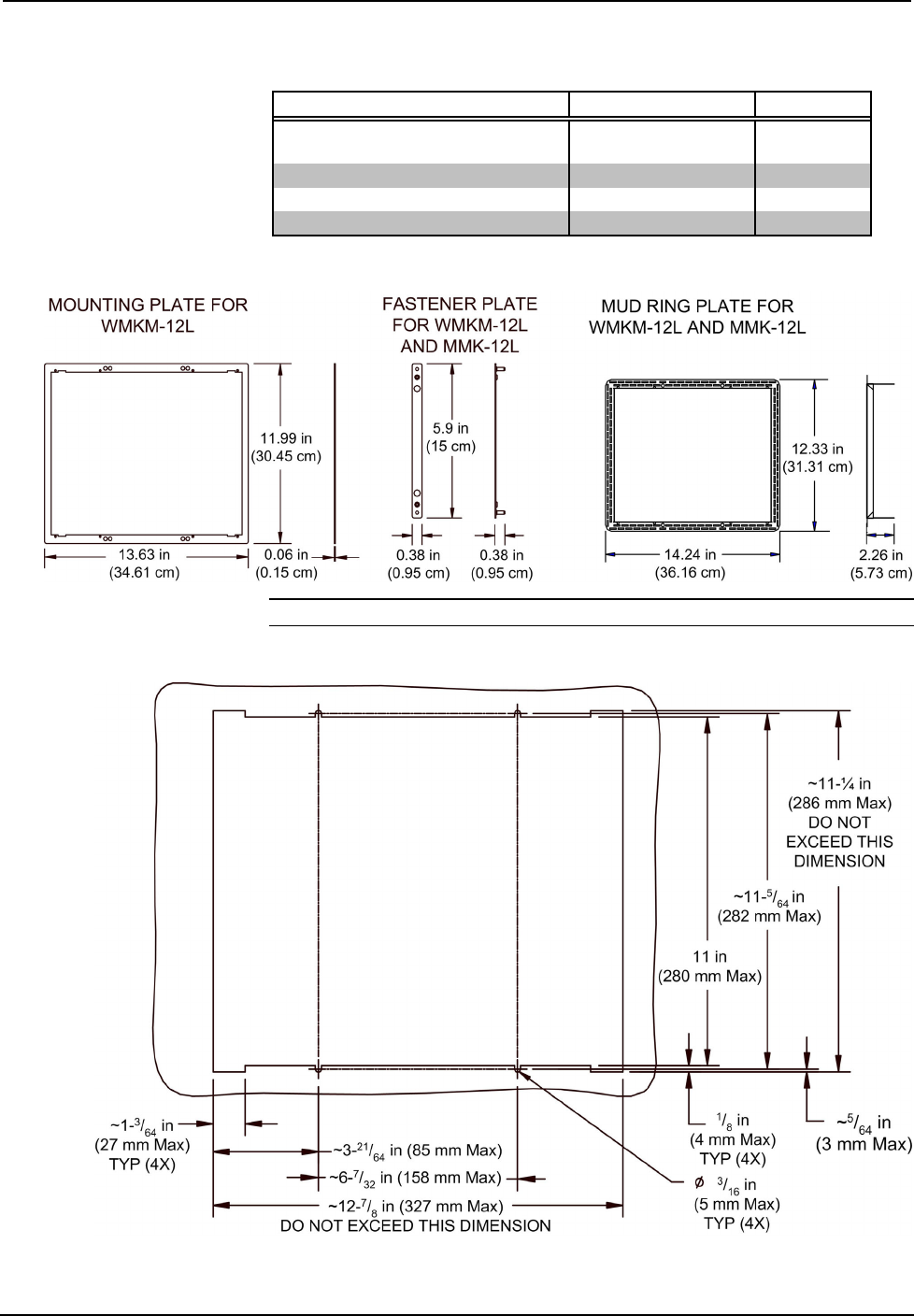
Dimensional Drawings
NOTE: You can use the mounting plate as a cutout template.
Drywall Cutout Dimensions
2 • Mud Mount Kits: MMK-12L & WMKM-12L Installation Guide – DOC. 6359