Snow Thrower Owner's Guide

13
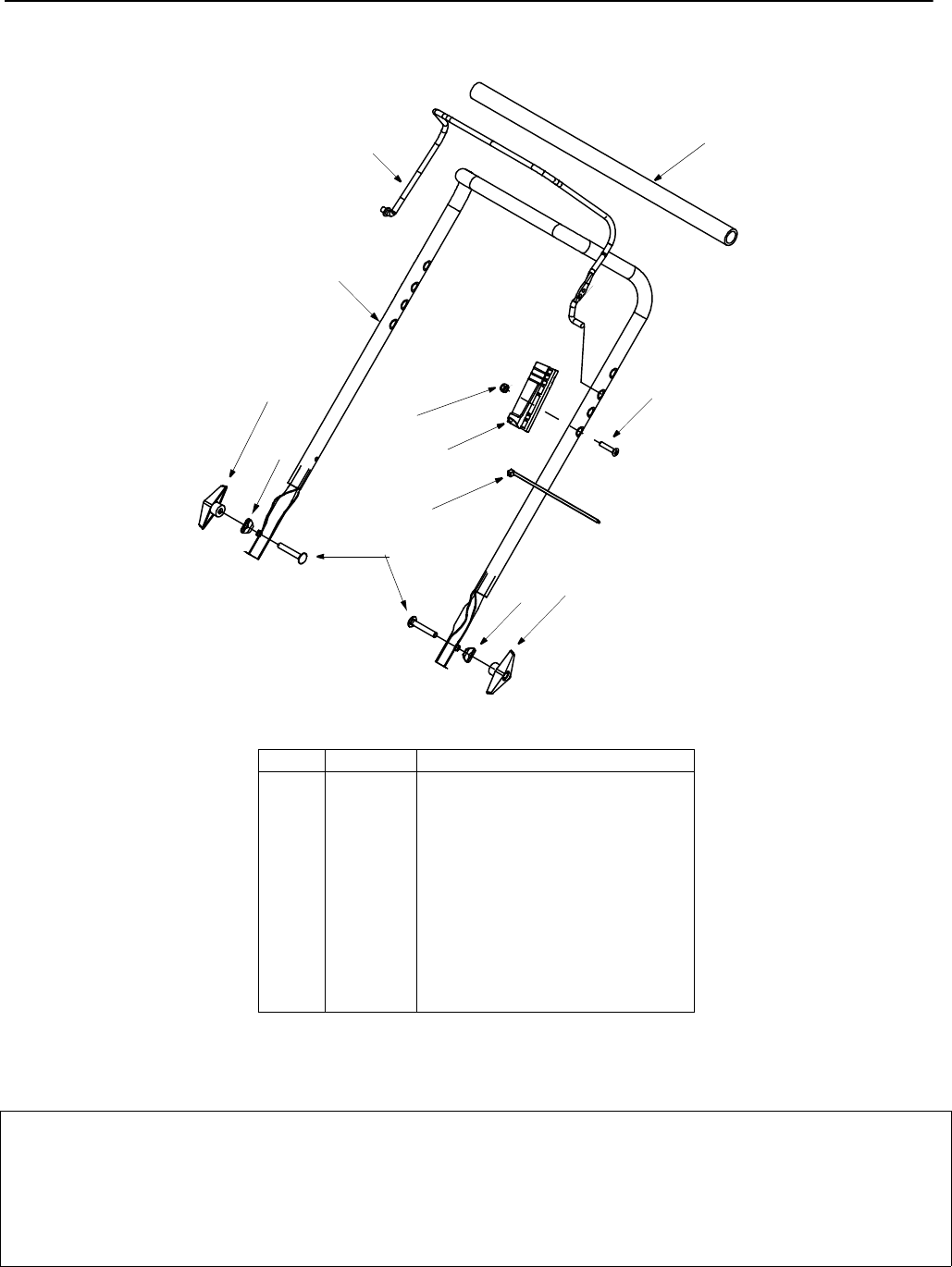
SECTION 9: PARTS LIST FOR MODEL 521E
Ref. No. Part No. Description
1.
710-0487 Carriage Screw
2.
710-1270 Oval C-Sunk Machine Screw
3.
712-0324 Hex Lock Nut
4.
720-0284 Wing Nut
5.
720-0295 Foam Grip: Handle
6.
725-0157 Cable Tie
7.
736-0451 Saddle Washer
8.
746-0883 Cable Housing w/o Throttle
9.
747-0956 Auger Bail: Gull Wing
10.
749-0711A Upper Handle: Gull Wing
5
9
10
7
4
8
3
6
2
7
4
1
NOTE: For painted parts, please refer to the list of color codes below. Please add the applicable color code, wherever
needed, to the part number to order a replacement part. For instance, if a part, numbered 700-xxxx, is painted Cub Yellow,
the part number to order would be 700-xxxx-0716.
Cub Yellow: 0716
Cub Beige: 0499
Cub Blue: 0685
Powder Black: 0637










