Operating Instructions and Installation Instructions

Installatievoorschrift
6
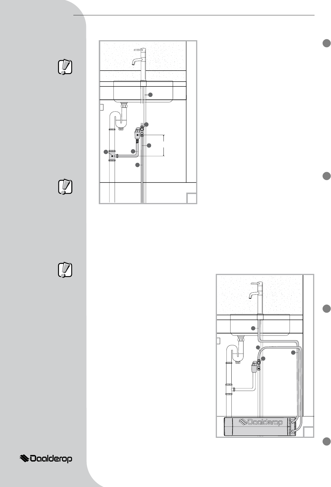
b. Plaatsdeinlaatcombinatie(5)opde
warmwaterleiding (4) en verbind de
trechtermetdeexibelekunststofslang
(6) aan het afvoer- T-stuk (7).
c. Het afvoer-T-stuk moet in de afvoerleiding
worden geplaatst. Dit T-stuk moet in
hoogte lager geplaatst worden dan de
trechter in verband met gevaar voor over
stroming van de trechter.
d. Plaats de boiler in het aanrechtkastje of
achter de plint (op een horizontaal- en
trillingsvrij vlak).
e. Sluitdeuitlaatvandeinlaatcombinatie(5)
aan op de boilerinlaat (gemarkeerd
met blauwe ring) met behulp van een
metalenexibeleslang(8).
f. Sluit de boileruitlaat (gemarkeerd met
rode ring) aan op de warmwaterkraaninlaat
(2).Gebruikhiervooreenmetalenexibele
slang(9).
2
7
1
5
4
5
c.
2
1
6
5
c.
4
7
6
2
3
7
4
9
8
3
2
5
8
9
LET OP!
Indien tijdens het opwarmen
geenexpansiewaterviade
inlaatcombinatie wegloopt,
schakel dan onmiddellijk de
spanning uit.
WAARSCHUWING!
Deexpansie-uitloopvande
inlaatcombinatie dient vrij in
de atmosfeer te blijven. Deze
buis mag nooit door een buis
of slang worden omsloten.
LET OP!
De afstand tussen de inlaat-
combinatie en de boiler mag
maximaal2meterzijn.