Installation Guide

7
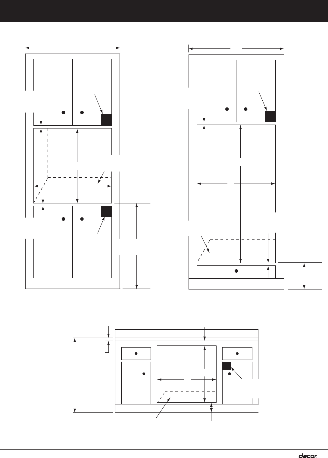
Installation Specifications
4” typical toe kick
Recommended
electrical
location
N
P
R
3/4” (1.9 cm)
support platform
1” (2.5 cm) min.
to bottom of
cabinet door
1” (2.5 cm) min.
to top of
drawer face
9 5/8” (24.4 cm)
recommended
Recommended
electrical
location
Alternate
electrical
location
4” typical toe kick
P
R
3/4” (1.9 cm)
support platform
31 1/4” (79.4 cm)
recommended
1” (2.5 cm) min.
to bottom of
cabinet door
1” (2.5 cm) min.
to top of
cabinet door
N
1 1/2”
(3.8 cm)
typical counter
1“ (2.5 cm) min.
to combustible floor
3/4” (1.9 cm)
support platform
1“ (2.5 cm) min. to combustibles
Recommended
electrical
location
4” typical toe kick
36” typ.
(91.4 cm)
P
R
Cabinet Dimensions
Single Wall Oven - Installed Under Counter
Single Wall Oven - Cutout Dimensions Double Wall Oven - Cutout Dimensions
Cabinet tolerances: +1/16 (1.6 mm), -0, unless otherwise stated.