Installation guide

8
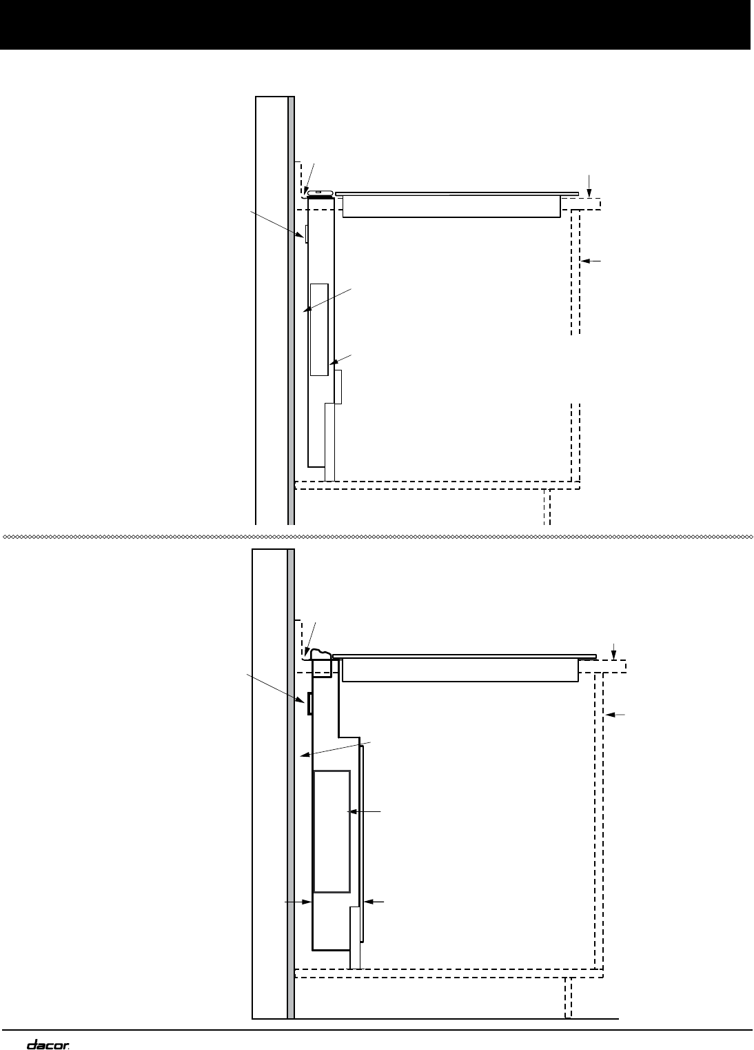
Stiffener
Cabinet face
Countertop
Floor
3/8 in min. (1.0 cm)
behind downdraft
chassis to clear stiffener
3/8 in min. (1.0 cm)
required behind cutout
for downdraft cap clearance
ERV or PRV Series Downdraft:
Check downdraft specifications
to determine correct fit
DTCT Series Cooktop
Stiffener
Cabinet face
Countertop
Floor
5/8 in min. (1.6 cm) space
needed behind downdraft vent
chassis to clear stiffener
4 5/8 in (11.7 cm)
9 7/8 in (25.1 cm) with
CABP3 blower installed
RV Series Downdraft:
Check downdraft
specifications to
determine correct fit
5/8 in min. (1.0 cm)
required behind cutout
for downdraft cap clearance
DTCT Series Cooktop
Cutout Dimensions All tolerances +1/16” -0”, unless otherwise noted.
With RV Series Downdraft
(side view)
With ERV or PRV Series
Downdraft (side view)
Installation Specifications
or HPCT Series Cooktop
or HPCT Series Cooktop