Installation Instructions

22 English
Installation Instructions
Preparing for Installation, cont.
Installing the Anti-tip Bracket and Foot, cont.
Wall-Mounting the Anti-tip Bracket
-
ness will not impede secure threading.
5. Having determined the wall-mounting is suitable, place the bracket against the wall in the mounting
location.
surfaces shown.
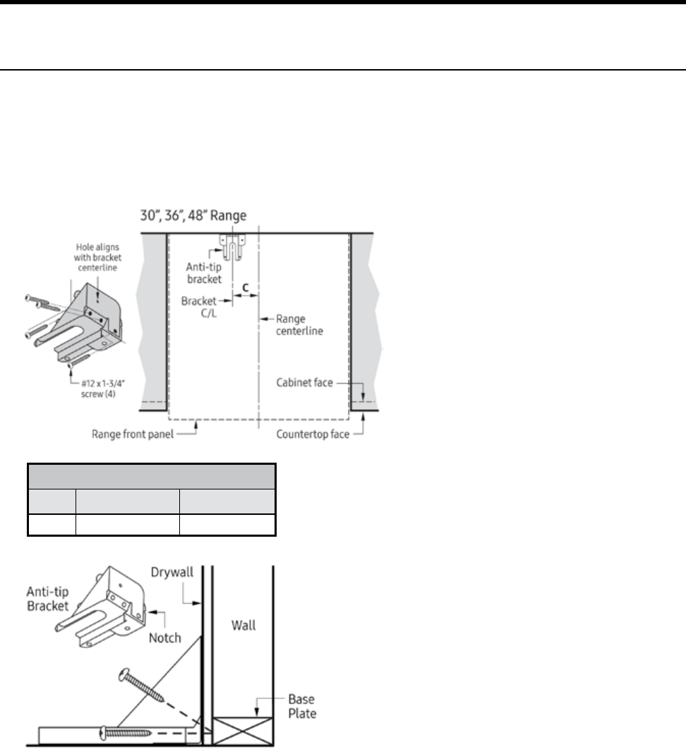
ANTI-TIP BRACKET PLACEMENT
Dim.
30, 36 48
cutout dimensions, determine the position of the range's
position.
against the wall.
3.
sides of the bracket.
Drill just deep enough to see if the bit contacts the base
plate. If there is contact, you can wall-mount the bracket.
If there is no contact, wall mounting is unsuitable, and
adding base material above the notches.