Technical data
Table Of Contents

10
VMIFI102
5 Piping installation
⚠
To prevent leaks ensure that there are no stresses in
the connecting pipes!
• Ensure that the pipe installation is carried out in accord-
ance with the dimensions and connection diagrams.
• Pipeinstallationmustbecarriedoutbyanauthor-
ized installer.
⚠
NOTE! It is extremely important that the heating sys-
tem is completely bled.
⚠
NOTE! Bleed valves must be installed where necessary.
5.1 Safety valve
Radiator systems with closed expansion tanks must also
be supplied with approved pressure gauge and safety
valve.
⚠
NOTE! The heat pump must be connected to the
expansion tank and the safety valve according to
applicable regulations.
The connecting lines between the reservoir and the
safety valve must be routed in a continuous incline.
A continuous upwards slope means that the pipe
must not slope downwards from the horizontal at
any point.
5.2 Heating system supply pipe and return
pipe
• Install a filter (max mesh size 0.7 mm) in the heating
system’s return pipe to protect the unit against foreign
particles.
• Install the supply line with all the accompanying com-
ponents.
• Install a suitable circulation pump in the heating system
supply pipe and connect the pump’s control cable to
the relevant terminal block (see separate wiring dia-
gram).
• Install the return line with all the accompanying compo-
nents.
• Insulate the supply and return pipes.
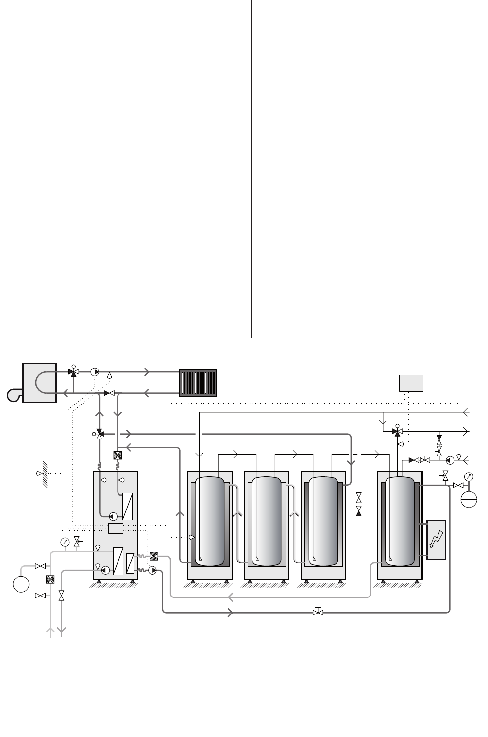
Example of system solution for DHP-R Eco with several water heaters.
TWC = Tap Water Control
CW = Cold water
HW = Hot water
HWC = Hot water circulation
HWH = Hot water heater
Additional shunt
(0-10V)
Heating system
Hot water
Hot gas circuit
TWC Communication
Brine
CW
HW
HWC
HWH HWH HWH HWH










