Manual

D560140
FAIRMONT™
SPECIFICATIONS
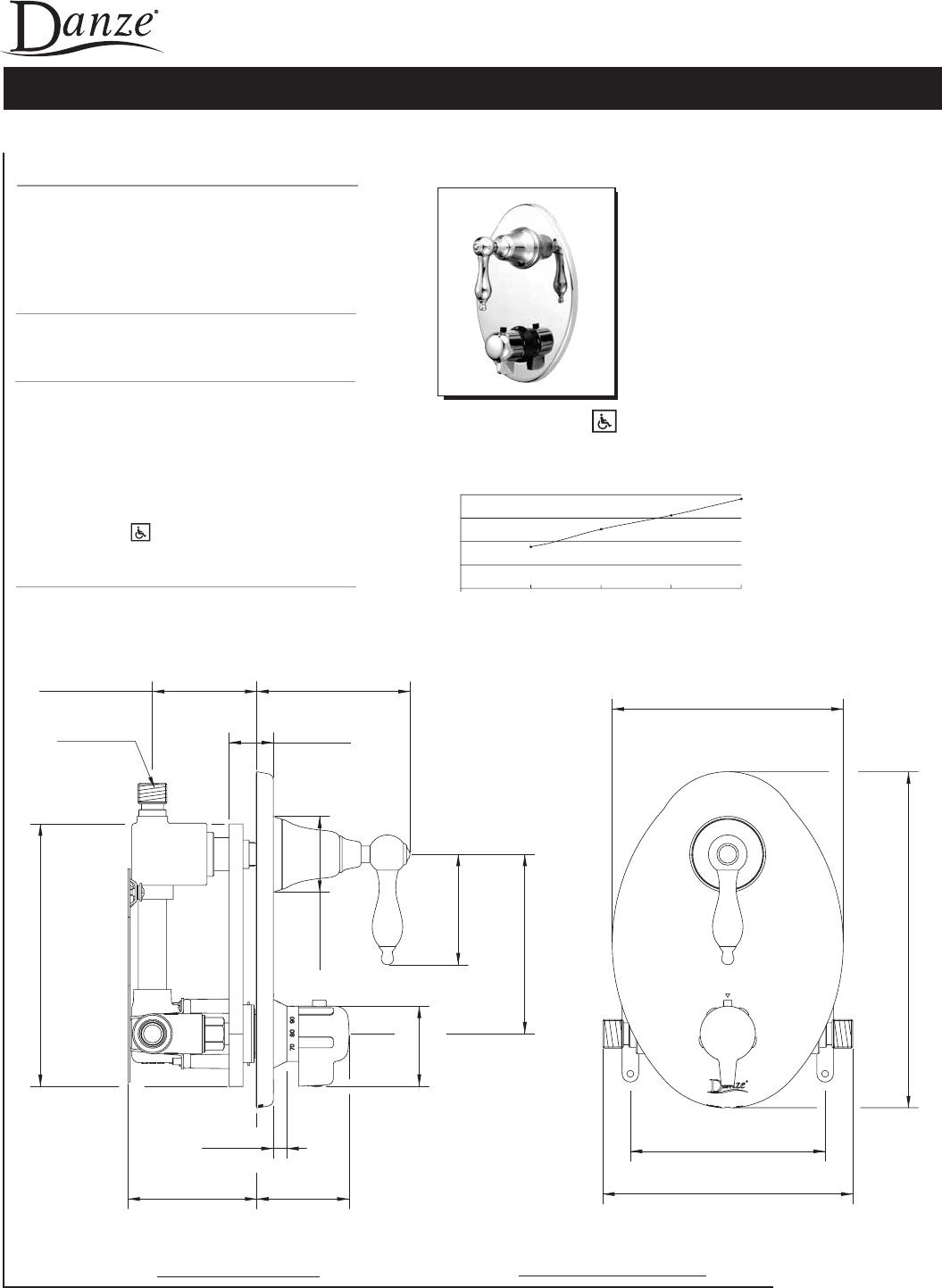
TWO HANDLE THERMOSTATIC SHOWER VALVE WITH TRIM
TWO HANDLE THERMOSTATIC SHOWER VALVE WITH TRIM
SD560140/12-07.01
Specific Features: Submitted Model No.:
Danze, Inc., 2500 Internationale Parkway, Woodridge, IL 60517, USA WWW.DANZE.COM
Available Colors & Finish
• Chrome
• Brushed Nickel (BN)
• Distressed Nickel (DN)
• Oil Rub Bronze (RB)
Trim Kit :
(for use w/thermostatic shower valve)
D560140T
Special Packaging
• Model numbers for trim kit items include the
suffix "T".
Description
• 1/2" combination IPS/Copper sweat on all
three ports
• 3-port shower valve with stops
• With temperature limit adjustment
Flow & Valving
• See Chart
20 40 60 80 PSI0
FLOW RATE CHART
5
10
15
20
GPM
1/2"-14NPT
9 9/16"
(243mm)
6 9/16"
(167mm)
7 1/2"
(190mm)
4 3/8"
(111mm)
3 1/8"
(80mm)
5 1/8"
(130mm)
2 5/16"
(58mm)
2 5/8"
(67mm)
3/8"
(10mm)
ø2 1/8"
(ø55mm)
3/4~1 1/4"
(19~32mm)
2 7/16~2 15/16"
(63~76mm)
7 1/8"
(181mm)
3 1/8~3 11/16"
(80~93mm)
5 9/16"
(141mm)
Warranty
Danze products are covered by a
manufacturer's limited "lifetime" warranty
for manufacturing defects.
Standards
• ASME A112.18.1
• CSA B125
• ASSE 1016
• Listed IAPMO/UPC
• Energy policy act of 1992
• ADA Accessibility Guidelines for Buildings
and Facilities - 4.27.4 Controls and
Mechanisms