DeviceNet Network Scanner Application Manual

DeviceNet Network Scanner DVPDNET-SL
DVP-PLC Application Manual
22
Status Explanation
0 No explicit message is sent out.
1 The communication of explicit message is successful.
2 The explicit message is being sent out.
3 Error: No response from the target equipment.
4 Error: Command is invalid.
5 Error: Size of request message is invalid.
6 Error: Size of reponse message is invalid.
7 Error: Failing to establish a connection to the target equipment.
8 ~ 255 Reserved
3. Notes:
DVPDNET-SL can only send out 1 explicit message at a time.
Before sending explicit message by using WPL program, we suggest you clear the request message
editing area and response message editing area to 0.
If the slava responds with standard error code, and DVPDNET-SL also consider the communication
being successful, “The communication of explicit message is successful.” will indicate that the
communication has been completed successfully.
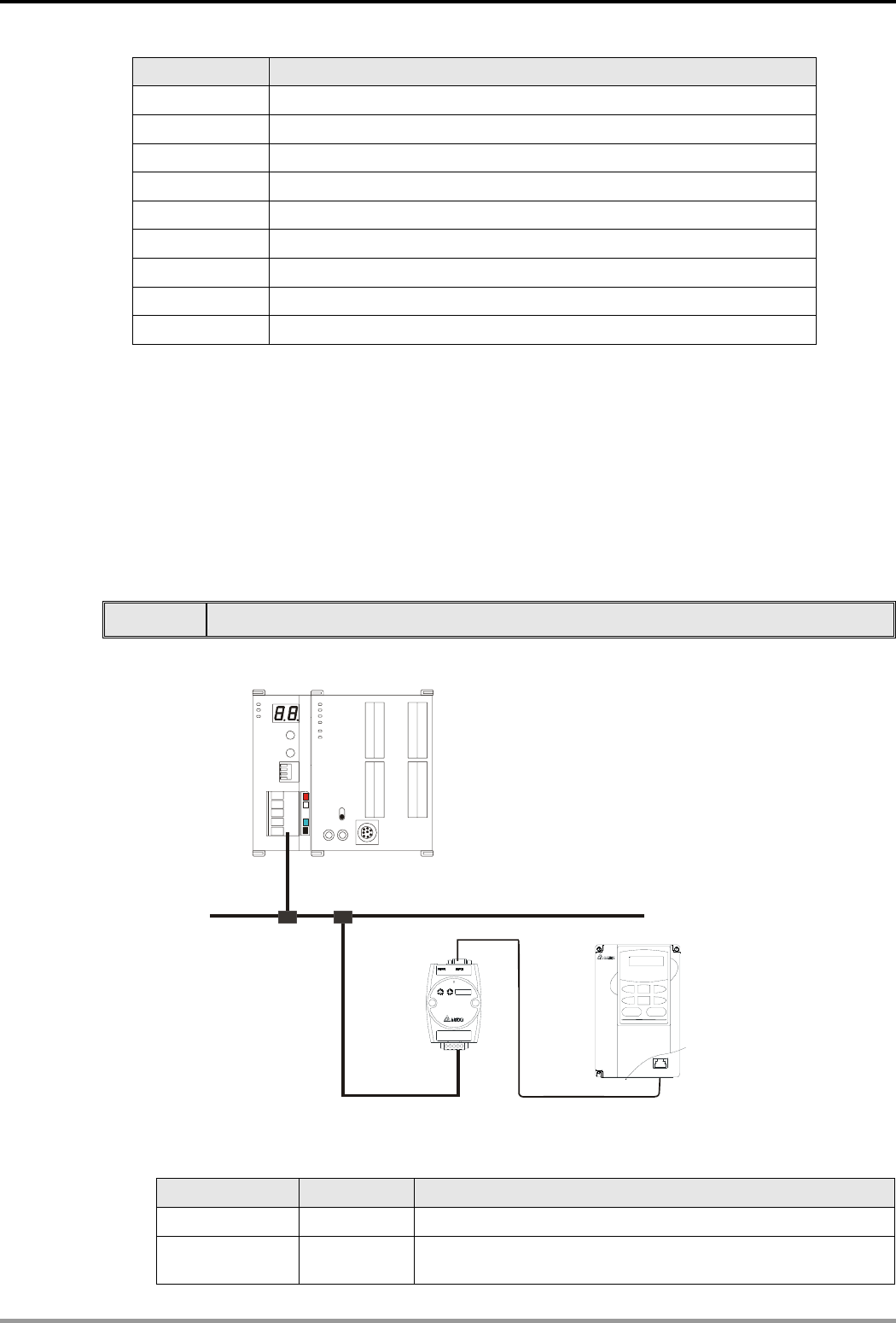
4. Application example (I)
Target When M0 = On, read Class 1>>Instance 1>>Attribute 1 of IFD9502
(1) The connection
DVPDNET DVP28SV
RUN
STOP
DeviceNet
RJ12
Node Address:00
Node Address:02
(2) Compulsory settings and explanations on devices
Compulsory settings in DVPDNET-SL
Parameter Set value Explanation
Node address 00 Set the node address of DVPDNET-SL to “00”.
Baud rate 500kbps
Set the communication speed of DVPDNET-SL and bus to
“500kbps”.










